K prodeji, Byt 2+kk, 38 m2, Prostějov, Vojtěcha Outraty

 
 
 
Lokalita:
Prostějov, Vojtěcha Outraty
 
 
Cena:
Info o ceně u RK
 
info v RK
 
Nabídněte prodejci Vaši cenu 
 
 

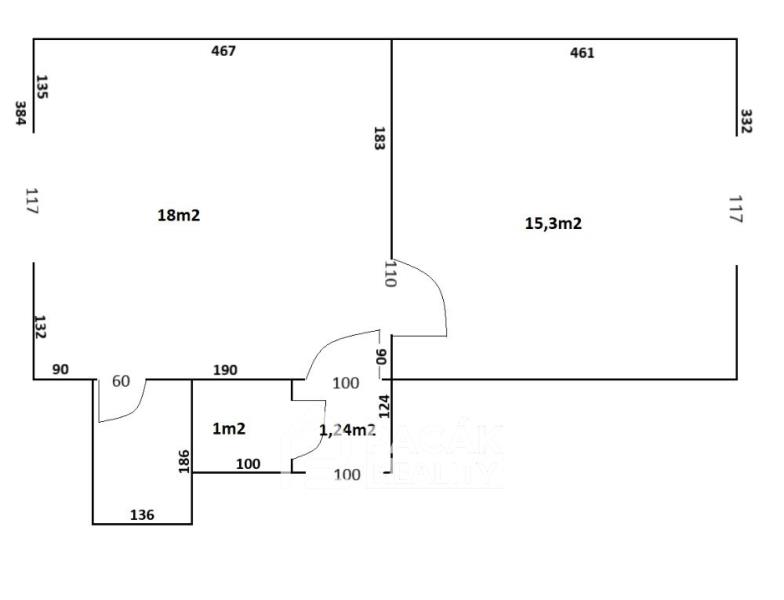
Nabízíme k prodeji byt v osobním vlastnictví o dispozici 2+kk o užitné ploše 38 m2 v klidné části města Prostějova, ul. V. Outraty v docházkové vzdálenosti do centra. Byt je umístěn ve 2. patře v dvoupatrovém bytovém cihlovém domě. Bytový dům je osazen sedlovou střechou s krytinou z pálených tašek, plastovými okny, připojen na městský vodovod, kanalizaci, elektro a plyn. Byt o dispozici 2 + kk tvoří obývací pokoj s kuchyňským koutem, samostatný pokoj, zázemí bytu doplňuje samostatná koupelna a WC. Byt je vytápěn plynovými topidly WAF, ohřev vody je zajištěn elektrickým bojlerem. Byt je vhodný pro vlastní bydlení, popř. jako investice. Veškerá občanská vybavenost v docházkové vzdálenosti bytového domu. Parkování je možné v okolí domu. Byt je připravený k okamžitému nastěhování. Pro více informací a domluvení prohlídky nás kontaktujte.

 
zobrazit více
 
 
 


Doplňující informace:

ID inzerátu ESO: 4366264
Inzerát vydán: 24.10.2025
Inzerát aktualizován: 25.11.2025
Budova je z: Cihla
Stav: Dobrý
Vlastnictví: Osobní
Umístění: Dobrý
Obytná plocha: 38 m2
Užitná plocha: 38 m2
Energetická náročnost budovy:
G - Mimořádně nehospodárná
 
 

 
 
 

Bleskový dotaz makléři

K prodeji, Byt 2+kk, 38 m2, Prostějov, Vojtěcha Outraty

Text dotazu *
Váš telefon *
Váš e-mail
Zobrazit kontaktní informace
Odeslat
 
 
 
 

Ve schránce je 0 inzerátů.

zobrazit celou schránku
 
 

Nalezli jsme dalších 2 nemovitostí v podobné ceně.

 
 
reklama