K prodeji, Byt 3+kk, 90 m2, Hradec Králové, třída Edvarda Beneše

 
 
 
exkluzivně
 
Lokalita:
Hradec Králové, třída Edvarda Beneše
 
 
Cena:
7 630 000 Kč / za nemovitost
 
 
Nabídněte prodejci Vaši cenu 
 
 

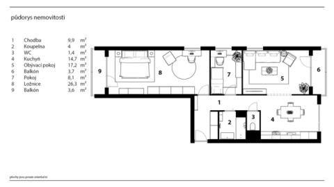
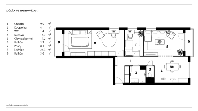
Rádi bychom vám tímto nabídli prostorný byt 3+kk, který bude v lednu 2026 převeden do osobního vlastnictví. Byt je po rekonstrukci v r. 2020: nové jádro, koupelna, WC, propojení kuchyně s obývacím pokojem, nové podlahy, kuchyň, elektrické rozvody. Na domě je plánována revitalizace a zateplení v r. 2026, které se propíše do nižších spotřeb energií. Součástí budou venkovní žaluzie na 3 oknech na JZ. Revitalizace se neprojeví nijak významně do příspěvků FO - max o 5 Kč/m2. K příjemnému a komfortnímu bydlení přispívá 2x lodžie 3 m2 a okna do tří světových stran dodávají bytu opravdu nadmíru světla. Tento byt je ve velmi dobrém stavu a je ideální volbou pro pár nebo rodinu, kteří hledají komfortní bydlení v blízkosti centra města. Dispozice bytu nabízí příjemné a vzdušné prostory, kde si každý člen rodiny přijde na své soukromí. Ložnice je opravdu prostorná - viz. přiložené půdorysy a je možné ji rozdělit na dva menší pokoje. K bytu patří sklep. Dům je vybaven dvěma výtahy. Lokalita, ve které se byt nachází, je velmi vyhledávaná. V blízkém okolí najdete veškerou občanskou vybavenost, včetně obchodů, restaurací, polikliniky a nákupního centra. Díky skvělé dostupnosti MHD a silnice se snadno dostanete do centra města nebo na jiné důležité cíle. Celkově se jedná o ideální nemovitost pro ty, kteří hledají pohodlné bydlení s veškerým komfortem na dosah ruky. V případě zájmu o prohlídku nás neváhejte kontaktovat.

 
zobrazit více
 
 
 


Doplňující informace:

ID inzerátu ESO: 4369233
Inzerát vydán: 11.11.2025
Inzerát aktualizován: 20.11.2025
ID zakázky v RK: 17944
Budova je z: Panel
Stav: Velmi dobrý
Vlastnictví: Družstevní
Umístění: Velmi dobrý
Obytná plocha: 90 m2
Balkón: 3m2
Lodžie: 3m2
Užitná plocha: 90 m2
Plocha sklepa: 1 m2
Energetická náročnost budovy:
C - Úsporná
 
 

 

Bleskový dotaz makléři

K prodeji, Byt 3+kk, 90 m2, Hradec Králové, třída Edvarda Beneše

Text dotazu *
Váš telefon *
Váš e-mail
Zobrazit kontaktní informace
Odeslat
 
 
 
 

Ve schránce je 0 inzerátů.

zobrazit celou schránku
 
 

Nalezli jsme dalších 34 nemovitostí v podobné ceně.

 
 
reklama