K prodeji, Obchody, Křemže, Náměstí

 
 
 
exkluzivně
 
Lokalita:
Křemže, Náměstí
 
 
Cena:
1 750 000 Kč / za nemovitost
 
Cena zahrnuje veškerý právní servis, poplatek za návrh na vklad na KN a provizi RK.
 
Nabídněte prodejci Vaši cenu 
 
 

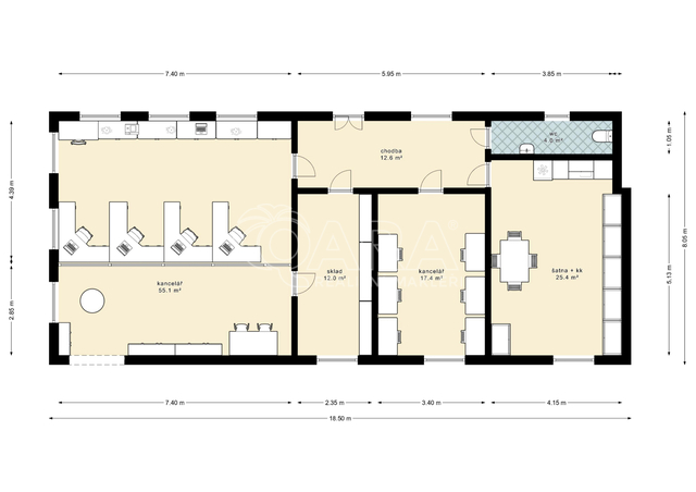
Dobrý den, společně s majitelem nabízíme k prodeji spoluvlastnický podíl 1/2 na nebytové jednotce č. 14/1 o celkové podlahové ploše 123,7 m², která se nachází v přízemí domu č.p. 14 přímo na náměstí městyse Křemže v okrese Český Krumlov. Křemže je stabilní jihočeský městys s přibližně třemi tisíci obyvateli a plnou základní občanskou vybaveností. Díky své poloze mezi Českým Krumlovem a Českými Budějovicemi funguje jako přirozené lokální centrum pro okolní obce. Náměstí, kde se nabízená jednotka nachází, je místem každodenního pohybu místních obyvatel – nachází se zde služby, obchody i veřejné instituce. Právě tato poloha zajišťuje dlouhodobou stabilitu služeb a podnikání v dané lokalitě. Nebytová jednotka je dlouhodobě využívána Českou poštou, která zde provozuje svou pobočku. Pro investora to znamená stabilního a prověřeného nájemce s pravidelným provozem služeb pro místní obyvatele. Prostory o celkové ploše 123,7 m² slouží jako kancelářské a provozní zázemí pobočky a zahrnují hlavní kancelář pro obsluhu klientů, další kancelářské prostory, skladovací místnosti, chodbu, sociální zařízení a zázemí pro zaměstnance včetně menší kuchyňky. Nájemní smlouva je uzavřena na dobu neurčitou a obsahuje možnost každoroční valorizace nájemného o inflaci. Energie má nájemce sjednány přímo na sebe, takže vlastník nenese provozní náklady spojené s elektřinou či plynem. Aktuální čistý měsíční příjem připadající na prodávaný podíl činí 5.780 Kč, tedy 69.360 Kč ročně. Kupní cena podílu je 1.750.000 Kč, což při současném nájmu představuje hrubý roční výnos z nájmu 3,96 %. A to bez započtení budoucí valorizace nájemného a bez zohlednění případného růstu hodnoty samotné nemovitosti. Investice tak nabízí kombinaci pravidelného příjmu, stabilního nájemce a reálného majetku v centru obce. V porovnání s běžnými bankovními produkty jde o investici krytou nemovitostí a dlouhodobým nájemním vztahem. Nebytová jednotka se nachází v přízemí zděného domu č.p. 14 na pozemku parc. č. 75/1 o výměře 823 m². Dům je napojen na veřejný vodovod, kanalizaci, elektřinu i plyn a vytápění je řešeno plynovým kotlem. Střecha domu s taškovou krytinou prošla v nedávné době renovací, takže tato větší investice je již vyřešena. Společné prostory domu jsou jinak v původním, ale udržovaném stavu a zahrnují konstrukce domu, střechu, rozvody, schodiště, chodby a další technické prvky. O úklid i údržbu společných prostor a pozemku se stará přímo společenství spoluvlastníků. Tato nabídka je vhodná pro investora, který hledá konzervativní uložení prostředků s pravidelným výnosem a minimální správní náročností. Nejde o spekulativní projekt, ale o fungující komerční prostor s kontinuálním cashflow. V případě zájmu o více informací nás neváhejte kontaktovat. Těšíme se na slyšenou a na viděnou, BartlGroup.

 
zobrazit více
 
 
 


Doplňující informace:

ID inzerátu ESO: 4392156
Inzerát vydán: 23.03.2026
ID zakázky v RK: 19138
Budova je z: Smíšená
Stav: Dobrý
Umístění: Dobrý
Užitná plocha: 124 m2
Podlahová plocha: 124 m2
Zastavěná plocha: 781 m2
Energetická náročnost budovy:
G - Mimořádně nehospodárná
 
 

 

Bleskový dotaz makléři

K prodeji, Obchody, Křemže, Náměstí

Text dotazu *
Váš telefon *
Váš e-mail
Zobrazit kontaktní informace
Odeslat
 
 
 
 

Ve schránce je 0 inzerátů.

zobrazit celou schránku
 
 
reklama