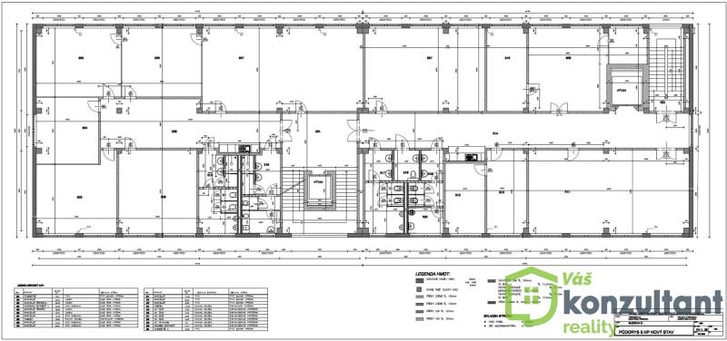
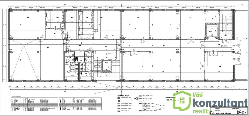
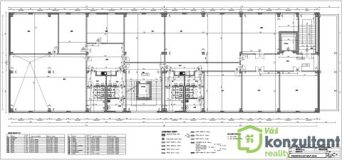
Nabízíme velké dílny o velikosti 60–160 m², vhodné pro montážní provozy, servisní centra, lehkou výrobu nebo technické firmy. Některé prostory mají vlastní sociální zázemí (šatna, umývárna). Možnost propojení s kancelářemi a sklady v rámci budovy. Výhody areálu • bezpečný areál s recepcí • přístup pro dodávky • možnost úprav dle potřeb nájemce • venkovní plochy až 2 500 m² • služby chráněných dílen Parametry • Plocha: 60–160 m² • Podlaží: 1.–5. NP • Zázemí: vlastní nebo společné • Vhodné pro: výrobu, servis, montáž Cena • 150 Kč/m² + DPH • Kauce: 2× nájem • Provize RK: 1× nájem + DPH ________________________________________ DOMLUVTE SI PROHLÍDKU Rádi vás provedeme celou budovou i areálem a představíme aktuálně dostupné prostory. Společně najdeme řešení přesně pro vaše podnikání. ________________________________________ DOSTUPNÉ TYPY PROSTOR Kanceláře (malé i velké) • plochy od cca 15 do 80 m² • možnost propojení více místností • reprezentativní kanceláře ve vyšších patrech • sociální zázemí na každém podlaží • výtah obsluhující všechna patra Sklady • menší sklady 10–25 m² • větší sklady 40–70 m² • suché, bezpečné, snadno přístupné • možnost kombinace s kanceláří nebo dílnou Dílny / provozní prostory • menší dílny 60–90 m² • větší dílny 120–160 m² • vhodné pro montáž, servis, lehkou výrobu • některé dílny mají vlastní šatnu či umývárnu Budova umožňuje flexibilní kombinace — kancelář + sklad, dílna + kancelář, nebo více kanceláří dohromady. ________________________________________ VÝHODY AREÁLU Bezpečnost a kontrolovaný provoz • oplocený areál s řízeným vstupem • recepce se závorou • 24hodinová ostraha • klidné a bezpečné prostředí pro zaměstnance i majetek Technické zázemí • připojení 230 V i 400 V • nosné betonové konstrukce • vytápění a základní vzduchotechnika • možnost úprav dle potřeb nájemce Parkování a venkovní plochy • dostatek parkovacích míst • možnost pronájmu venkovních skladovacích ploch až 2 500 m² • zpevněné plochy vhodné pro manipulaci i parkování techniky Služby v areálu V areálu působí chráněné dílny, které mohou zajistit: • údržbu a drobné opravy • pomocné provozní práce • externí podporu pro nájemce ________________________________________ LOKALITA A DOSTUPNOST Areál se nachází v průmyslové části Ostravy – Přívozu s výborným napojením na hlavní tahy a dálnici. Snadná dostupnost pro zaměstnance i dodavatele, možnost příjezdu dodávek i větších vozidel. ________________________________________ FINANČNÍ PODMÍNKY • Nájemné: 150 Kč/m² + DPH • Kauce: 2× měsíční nájem • Provize RK: 1× měsíční nájem + DPH nebo 20.000,- Kč + DPH • Venkovní plochy: 30 Kč/m²/měsíc ________________________________________ PRO KOHO JE BUDOVA VHODNÁ • administrativní firmy • servisní a montážní provozy • e shopy a distribuční společnosti • technické a projektové týmy • firmy hledající kombinaci kanceláře + sklad + dílna
Tel: 733 342 852 filip.tazky@vaskonzultant.cz
Roháčkova 120/23, 61700 Brno www.vaskonzultant-reality.cz
Ve schránce je 0 inzerátů.
K pronájmu, Kanceláře Ostrava, Křišťanova
K pronájmu, Sklady Ostrava, Křišťanova
K pronájmu, Kanceláře Ostrava, 28. října
K pronájmu, Kanceláře Ostrava, Koksární
K pronájmu, Kanceláře Ostrava, Škroupova