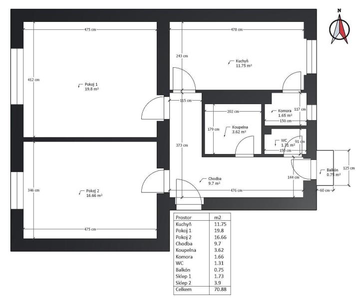
Dobrý den, právě pro Vás připravujeme k prodeji byt o dispozici 2+1 a celkové výměře podle dokumentace 65,62 m2, který se nachází ve zděném bytovém domě v Pardubicích na Zeleném Předměstí. Předmětný byt se nachází v 2.NP zděného bytového domu bez výtahu o 15 bytech. Orientace: východ, západ. V minulosti prošel rekonstrukcí, která je již z určitého pohledu morálně zastaralá. Nicméně byt je v dobrém stavu, plně funkční, ihned obyvatelný. Vytápění a ohřev vody je řešeno prostřednictvím vlastního ústředního kombinovaného plynového kotle. Děkuji, Václav Růžička, realitní specialista. Prodávající si vyhrazuje právo na výběr kupujícího dle vlastní úvahy (způsob úhrady kupní ceny, serióznost jednání apod.).
Tel: 776 761 004 vaclav.ruzicka@rvreality.cz
Bratranců Veverkových 355, 530 02 Pardubice www.rvreality.cz
Ve schránce je 0 inzerátů.
K prodeji, Byt 3+kk Pardubice, Pardubice V, Svobody
K prodeji, Byt 2+kk, 55 m2 Opatovice nad Labem, Smetanova
K prodeji, Byt 2+1, 48 m2 Pardubice, Bartoňova
K prodeji, Byt 3+1, 87 m2 Pardubice, Lonkova
K prodeji, Byt 1+1, 36 m2 Pardubice, Družstevní
K prodeji, Byt 2+1, 74 m2 Pardubice, Luďka Matury
K prodeji, Byt 3+kk Pardubice, Družstevní
K prodeji, Byt 4+1 Holice, Na Mušce