K prodeji, Byt 2+kk, Praha 6, Pod Drinopolem

 
 
 
Lokalita:
Praha 6, Pod Drinopolem
 
 
Cena:
11 220 000 Kč / za nemovitost
 
 
Nabídněte prodejci Vaši cenu 
 
 

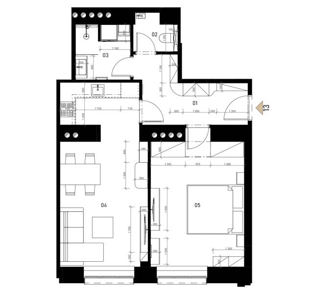
Kompletně vybavená bytová jednotka o dispozici 2+kk a celkové podlahové ploše 63,1 m² se nachází v 1. podlaží šestipodlažního bytového domu na Břevnově. K jednotce náleží sklepní kóje o výměře 2,8 m². Byt je dokončen do standardu „fit out“, tedy k nastěhování – včetně finálních povrchů, sanitárního vybavení kuchyňské linky, nábytku na míru a dalšího vybavení. Nechybí dřevěné podlahy, nová okna a moderní koupelna. Celý dům prošel citlivou rekonstrukcí a rezidenti mohou nově využívat praktické společné prostory jako jsou fitness, sauna, kolárna, kočárkárna nebo klidný vnitroblok určený k odpočinku. Lokalita nabízí příjemné rezidenční prostředí s kompletní občanskou vybaveností v okolí. V docházkové vzdálenosti jsou kavárny, restaurace, obchody, školy, zdravotnická zařízení i zastávky MHD. Na dosah je také městská zeleň a parky, které vybízejí k odpočinku či sportu. Cena je vč. veškerého vybavení.

 
zobrazit více
 
 
 


Doplňující informace:

ID inzerátu ESO: 4357865
Inzerát vydán: 08.09.2025
Inzerát aktualizován: 28.01.2026
ID zakázky v RK: 6489850
Budova je z: Cihla
Stav: Po rekonstrukci
Vlastnictví: Osobní
Umístění: Po rekonstrukci
Zařízení bytu: Plně zařízený
Parkování: U domu (veřejné)
Energetická náročnost budovy:
F - Velmi Nehospodárná
 
 

 

Bleskový dotaz makléři

K prodeji, Byt 2+kk, Praha 6, Pod Drinopolem

Text dotazu *
Váš telefon *
Váš e-mail
Zobrazit kontaktní informace
Odeslat
 
 
 
 

Ve schránce je 0 inzerátů.

zobrazit celou schránku
 
 

Nalezli jsme dalších 28 nemovitostí v podobné ceně.

 
 
reklama