K prodeji, Byt 2+kk, 62 m2, Ostrava, Na Burni

 
 
 
Lokalita:
Ostrava, Na Burni
 
 
Cena:
7 153 000 Kč / za nemovitost
 
 
Nabídněte prodejci Vaši cenu 
 
 

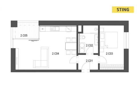
Nabízíme ke koupi moderní byt ve vyhledávané lokalitě Slezská Ostrava. Tento byt se nachází v jednom ze dvou třípodlažních domů uzavřeného rezidenčního areálu, který je vkusně začleněn do klidné okolní zástavby. Byt nabízí moderní dispoziční řešení a je vybaven kvalitními materiály ve vysokém standardu, který je již zahrnut v ceně – např. klimatizace, venkovní žaluzie, podlahové vytápění a další. Interiér je navržen s důrazem na praktické, pohodlné a stylové bydlení. Součástí areálu je podzemní garáž s přímým vstupem do domu s výtahem. Uzavřený komplex nabízí také dva vnitřní dvory – jeden s vjezdem a parkováním pro návštěvy, druhý jako klidovou zónu se zahradou, stromy, dětským hřištěm a relaxační zónou. Výborná poloha: Rezidence je umístěna v tiché části Slezské Ostravy, přitom v docházkové vzdálenosti od obchodů, škol, zdravotnických zařízení, restaurací i centra města. V blízkosti jsou rovněž lesy, řeka, cyklostezky a místa pro relaxaci i sport. Podlahová plocha bytu je 56,5 m2 a lodžie 5,7 m2, celková podlahová plocha bytu - 62,2 m2. K bytu je možné zakoupit venkovní parkovací stání nebo parkovací stání v 1. podzemním podlaží budovy. K dispozici jsou rovněž sklepní kóje. Parkovací stání a sklepní kóje nejsou součástí ceny bytu. Předpokládaný termín kolaudace - červen 2026. Neváhejte mě kontaktovat pro více informací – ráda vám zodpovím veškeré dotazy. Do konce prosince 2025 nabízíme prostřednictvím našeho partnera úrokové sazby od 4,29 % p.a. Více informací Vám sdělí náš specialista na prohlídce.

 
zobrazit více
 
 
 


Doplňující informace:

ID inzerátu ESO: 4360035
Inzerát vydán: 19.09.2025
Inzerát aktualizován: 28.11.2025
ID zakázky v RK: 133502
Budova je z: Smíšená
Stav: Velmi dobrý
Vlastnictví: Osobní
Umístění: Velmi dobrý
Obytná plocha: 62 m2
Lodžie: ANO
Užitná plocha: 56 m2
Podlahová plocha: 62 m2
Energetická náročnost budovy:
B - Velmi úsporná
 
 

 

Bleskový dotaz makléři

K prodeji, Byt 2+kk, 62 m2, Ostrava, Na Burni

Text dotazu *
Váš telefon *
Váš e-mail
Zobrazit kontaktní informace
Odeslat
 
 
 
 

Ve schránce je 0 inzerátů.

zobrazit celou schránku
 
 

Nalezli jsme dalších 66 nemovitostí v podobné ceně.

 
 
reklama