K prodeji, Byt 2+kk, 69 m2, Liberec, Tovární

 
 
 
Lokalita:
Liberec, Tovární
 
 
Cena:
1 900 000 Kč / za nemovitost
 
Cena za převod 1 900 000, - Kč, zůstatek anuity 4 800 000, - Kč, celková cena 6 700 000, - Kč , 4.500, - Kč + DPH administrativní poplatek družstvu
 
uvedená cena je: včetně provize, včetně právního servisu Nabídněte prodejci Vaši cenu 
 
 

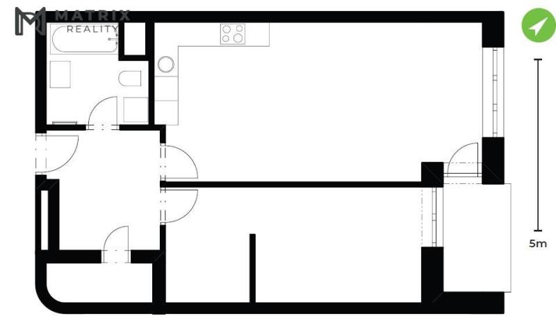
Nabízíme Vám unikátní příležitost stát se majitelem moderního družstevního bytu 2+kk v nízkoenergetickém domě v klidné části Liberce. Tento byt se nachází v novostavbě na 6. podlaží cihlového domu v obci Liberec X-Františkov na projektu Zahrada Gallas. K bytu náleží vnitřní parkovací stání. K dispozici je prostorný obývací pokoj s přípravou na kuchyňskou linkou, kterou si uděláte dle svých představ.. Dále zde najdete útulnou ložnici, která nabízí dostatek prostoru pro pohodlný spánek. Relaxovat můžete na balkóně, který má vchod z ložnice i obývacího pokoje. Byt je vybaven ÚT dálkovým vytápěním. Splátka anuity je ve výši 22.923,-Kč měsíčně. Výhodou tohoto bytu je také jeho umístění v klidné části obce se všemi potřebnými službami v dosahu. V blízkosti najdete například školu, školku, obchody, restaurace a další. V rámci veřejného prostoru tohoto projektu zde bude k dispozici také dětské hřiště, komunitní zahrada, místo pro grilování a relaxaci, ovocný sad, workout hřiště. Pokud hledáte moderní a kvalitní bydlení v nízkoenergetickém domě v klidné části Liberce, tento byt je pro vás ideální volbou. Neotálejte a kontaktujte nás pro více informací a domluvte si prohlídku. Tato příležitost se nemusí brzy opakovat!

 
zobrazit více
 
 
 


Doplňující informace:

ID inzerátu ESO: 4345426
Inzerát vydán: 09.07.2025
Inzerát aktualizován: 04.12.2025
ID zakázky v RK: 0
Budova je z: Cihla
Stav: Velmi dobrý
Vlastnictví: Družstevní
Umístění: Velmi dobrý
Obytná plocha: 69 m2
Balkón: 5m2
Užitná plocha: 69 m2
Podlahová plocha: 69 m2
 
 

 

Bleskový dotaz makléři

K prodeji, Byt 2+kk, 69 m2, Liberec, Tovární

Text dotazu *
Váš telefon *
Váš e-mail
Zobrazit kontaktní informace
Odeslat
 
 
 
 

Ve schránce je 0 inzerátů.

zobrazit celou schránku
 
 

Nalezli jsme dalších 4 nemovitostí v podobné ceně.

 
 
reklama