K prodeji, Byt 3+kk, 123 m2, Železná Ruda

 
 
 
exkluzivně
 
Lokalita:
Železná Ruda
 
 
Cena:
13 990 000 Kč / za nemovitost
 
 
Nabídněte prodejci Vaši cenu 
 
 

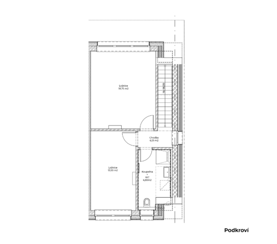
Zveme vás na den otevřených dveří, který se koná v sobotu 28.8. od 10 do 17 hod. Během dne si budete moci prohlédnout nejen samotné apartmány, ale i celý resort. Pokud chcete, abychom se Vám mohli naplno věnovat, doporučujeme si předem rezervovat konkrétní čas své prohlídky u makléře. Těšíme se na vás. K prodeji nabízíme zkolaudovaný mezonetový krajní apartmán C6 o dispozici 3+kk (98,3 m2) s balkonem (7,2 m2) a vlastní kolárnou (17,4 m2) v nově vzniklém Resortu Alpalouka ve vyhledávané lokalitě na Špičáku v Železné Rudě. Apartmán je umístěn v energeticky velmi úsporné novostavbě (třída B). Interiér je rozdělen na část společenskou v 1. NP a klidovou v podkroví. Většinu společenské části zaujímá obývací pokoj spojený s kuchyňským koutem. Velká okna a posuvné dveře krásně prosvětlí obývací pokoj a zároveň umožňují vstup na balkon. Společenská část je dále členěna na předsíň a koupelnu s WC. Po schodišti vedoucím z obývacího pokoje lze vystoupat do podkroví, kde se nachází dva neprůchozí pokoje a druhá koupelna s WC. Apartmán je dokončen v nadstandardním provedení, které zahrnuje kvalitní plastohliníková okna a posuvné dveře typu HS portál s izolačním trojsklem, venkovní žaluzie, podlahové vytápění, v koupelnách navíc s topnými žebříky, nástěnné klimatizace ve všech obytných místnostech, elektrický zásobníkový ohřívač vody, zabezpečovací zařízení JABLOTRON s aplikací pro dálkové ovládání alarmu i celé domácnosti (ovládání klimatizace, topení či venkovních žaluzií), vnitřní schodiště s masivními dřevěnými nášlapy, interiérové dveře bílé s obložkovými zárubněmi, lepené vinylové podlahy v kombinaci s keramickou dlažbou, obklady či sanitu od renomovaných výrobců. Resort je oplocený, na vjezdu s automatickou bránou, napojený na zpevněnou obecní komunikaci a chráněn kamerovým systém. K dispozici bude soukromá sauna s on-line rezervací. Na pozemku je také dětské hřiště a ohniště. Otopný systém je doplněn fotovoltaickými panely na střechách obou budov. Takto získanou elektrickou energii mohou společně využívat obyvatelé resortu pro provoz svých domácností. Výhodou je také umístění v Chráněné krajinné oblasti Šumavy a blízkosti Národního parku Šumava s ojedinělými krajinnými prvky včetně ledovcových jezer, vodopádů, pramenišť řek či výhledů z nejvyšších vrcholů. Především oblast Špičák je oblíbeným místem pro aktivní odpočinek. Množství sportovních středisek, turistických, cyklistických a běžeckých tras je zárukou širokého sportovního vyžití. Konečná cena vč. 21% DPH, provize RK, právního servisu a advokátní úschovy kupní ceny činí 13.990.000 Kč. K bytu je nutné dokoupit dvě krytá parkovací stání za cenu 690.000 Kč včetně 21% DPH. Možnost odpočtu 21% DPH. Pro bližší informace či domluvení prohlídky volejte na uvedený mobilní telefon. Vybavení apartmánu (vč. kuchyňské linky) je možné odkoupit za zvýhodněnou cenu. Pro zjištění rozměrů místností a objektů v prostoru využijte možnost měření ve virtuální prohlídce pomocí ikony pravítka v levém dolním rohu.

 
zobrazit více
 
 
 


Doplňující informace:

ID inzerátu ESO: 4237535
Inzerát vydán: 11.04.2024
Inzerát aktualizován: 12.11.2025
ID zakázky v RK: 0770
Budova je z: Cihla
Stav: Velmi dobrý
Vlastnictví: Osobní
Umístění: Velmi dobrý
Obytná plocha: 123 m2
Balkón: 7m2
Užitná plocha: 98 m2
Podlahová plocha: 123 m2
Plocha sklepa: 18 m2
Energetická náročnost budovy:
B - Velmi úsporná
 
 

 

Bleskový dotaz makléři

K prodeji, Byt 3+kk, 123 m2, Železná Ruda

Text dotazu *
Váš telefon *
Váš e-mail
Zobrazit kontaktní informace
Odeslat
 
 
 
 

Ve schránce je 0 inzerátů.

zobrazit celou schránku
 
 

Nalezli jsme dalších 456 nemovitostí v podobné ceně.

 
 
reklama