K prodeji, Novostavba: Byt 3+kk, 66 m2

 
 
 
exkluzivně
nový
 
Lokalita:
 
 
Cena:
4 870 000 Kč / za nemovitost
 
 
uvedená cena je: bez provize Nabídněte prodejci Vaši cenu 
 
 

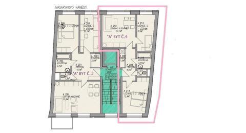
K prodeji nabízíme novostavbu bytu 3 KK, 66 m2, s balkonem, na adrese: Masarykovo nám. 47, Bystřice nad Pernštejnem. Jedná se o byt č. 4 ve 3 NP 2 patře s výtahem. Orientace bytu: Výhled na náměstí ( SV ) je z obývacího pokoje a malé ložnice, do vnitrobloku je orientována větší ložnice ( JZ ). K bytu je možno dokoupit parkovací místo ve vnitrobloku. Lokalita zajišťuje majitelům dokonalé soukromí přímo v centru města. Architektura s pokorou doplňuje historickou zástavbu a ctí ducha místa. Projekt je v současnosti realizován, dokončení projektu předpokládá rok 2027. Proto jsou ceny jsou zaváděcí a také financování bude z tohoto důvodu řešeno postupně. V první fázi rezervační záloha 10 % z celkové ceny bytu, po prohlášení vlastníka (rozdělení již hotové budovy na jednotlivé byty) další záloha do výše 50% celkové ceny, po kolaudaci nemovitosti se doplatí zbývající část. Tento způsob financování je velmi oblíbený, protože nabzí zájemci variabilitu a umožňuje si připravit odpovídající Cash flow s předstihem v klidu a bez rizika. Projekt je navržen tak, aby byl cenově dostupný, aniž bychom slevili z kvality provedení. Nabízíme moderní standardy bydlení, energetickou úspornost a promyšlené dispozice. Bydlet v developerském projeku: Rezidenci N°47 (pod tímto názvem najdete i internetové stránky) znamená mít obchody, služby, školy i kulturu na dosah ruky a zároveň se vracet do domu, který reprezentuje klid a pohodu. Firma Suniversal stavby, která tento projekt zaštiťuje, je mimo jiné, také zhotovitelem úžasného volnočasového projektu v Opatově (kousek za Třebíčí) apartmanyopatov. Vychází se i zde z dlouholetých zkušeností a vysokých standardů, kvality a to vše za přiznivé ceny, tak aby bydlení bylo dostupné každému. Více informací u makléře

 
zobrazit více
 
 
 


Doplňující informace:

ID inzerátu ESO: 4390641
Inzerát vydán: 12.03.2026
Inzerát aktualizován: 15.03.2026
ID zakázky v RK: 7370090
Budova je z: Cihla
Stav: Nerozhoduje
Vlastnictví: Osobní
Umístění: Nerozhoduje
Zařízení bytu: Nezařízený
Obytná plocha: 66 m2
Plocha pozemku: 492 m2
Bytové jádro: Zděné
Parkování: U domu (veřejné)
Balkón: 3m2
Užitná plocha: 66 m2
Podlahová plocha: 66 m2
Plocha sklepa: 2 m2
Energetická náročnost budovy:
G - Mimořádně nehospodárná
 
 

 
 
 

Bleskový dotaz makléři

K prodeji, Novostavba: Byt 3+kk, 66 m2

Text dotazu *
Váš telefon *
Váš e-mail
Zobrazit kontaktní informace
Odeslat
 
 
 
 

Ve schránce je 0 inzerátů.

zobrazit celou schránku
 
 

Nalezli jsme dalších 1730 nemovitostí v podobné ceně.

 
 
reklama