K prodeji, Byt 3+kk, 80 m2, Olomouc, Loudova

 
 
 
Lokalita:
Olomouc, Loudova
 
 
Cena:
8 935 000 Kč / za nemovitost
 
 
Nabídněte prodejci Vaši cenu 
 
 

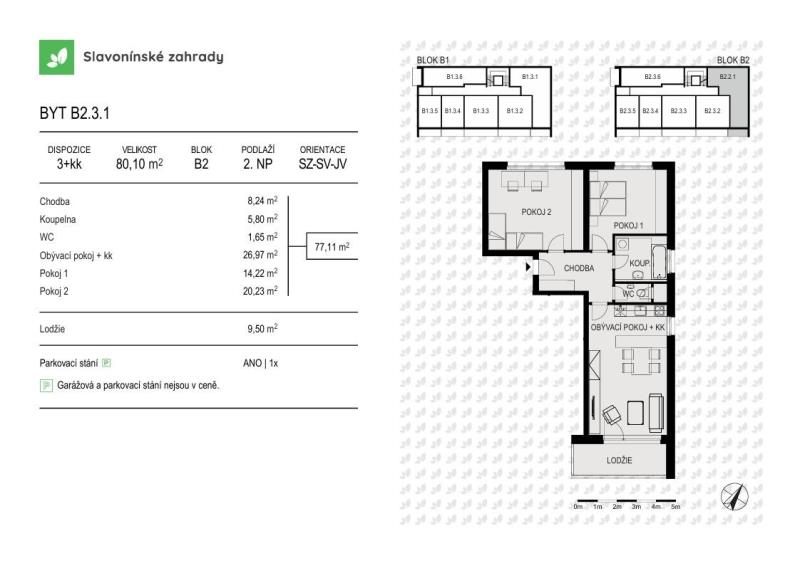
Nová etapa projektu SLAVONÍNSKÉ ZAHRADY navazuje na již realizované budovy v okolí ulice Loudova a nabízí kvalitní domov pro rodiny s dětmi, mladé páry, seniory i studenty. Budova B tvořená dvěma samostatnými sekcemi o čtyřech podlažích zahrnuje celkem 48 moderních bytů v dispozicích od 1kk do 3kk. Každý byt disponuje balkonem či terasou a jednotky v 1. NP mají navíc prostorné předzahrádky, ideální pro relax i rodinný život. Součástí projektu je podzemní parkovací podlaží, které propojuje obě sekce domu, a je tak zajištěno komfortní parkování pro obyvatele. K dokoupení jsou také komory jak v podzemním podlaží, tak na jednotlivých patrech. Pro více informací navštivte webové stránky Slavoninske-zahrady. Nabízíme prostorný byt s označením B2.3.1 o dispozici 3+kk, podlahové ploše 80,1 m2 v 3. NP, s balkónem 9,5 m2 ideální pro rodiny s dětmi, páry nebo jako investiční bydlení. Byt je navržen s důrazem na funkčnost, estetiku a soukromí. Velká okna zajišťují dostatek denního světla, přízemní umístění nabízí snadný přístup na terasu a do zahrady, která rozšiřuje obytný prostor a vytváří ideální místo pro relaxaci i volnočasové aktivity. Součástí standardu je podlahové vytápění v celém bytě, vinylové podlahy, keramické obklady, obložkové zárubně a možnost výběru z několika designových a materiálových variant. Připraveno je i technické zázemí pro instalaci venkovních žaluzií a sdílené fotovoltaiky. K bytu lze dokoupit garážové/venkovní stání i sklep. Lokalita Slavonína spojuje výhody města a přírody v okolí najdete cyklostezky, rybník, zeleň i kompletní občanskou vybavenost. MHD, školy, školky, zdravotní péče i obchody jsou v docházkové vzdálenosti, stejně jako napojení na hlavní dopravní tahy. Pokud hledáte moderní bydlení s vysokým standardem, soukromím a vlastním kouskem zeleně, je tento byt skvělou volbou. Dokončení projektu je plánováno na podzim 2027. Prodej je již zahájen kontaktujte nás pro více informací.

 
zobrazit více
 
 
 


Doplňující informace:

ID inzerátu ESO: 4374111
Inzerát vydán: 08.12.2025
Inzerát aktualizován: 20.04.2026
ID zakázky v RK: 0
Budova je z: Smíšená
Stav: Velmi dobrý
Vlastnictví: Osobní
Umístění: Velmi dobrý
Obytná plocha: 80 m2
Užitná plocha: 80 m2
Podlahová plocha: 80 m2
Energetická náročnost budovy:
B - Velmi úsporná
 
 

 
 
 

Bleskový dotaz makléři

K prodeji, Byt 3+kk, 80 m2, Olomouc, Loudova

Text dotazu *
Váš telefon *
Váš e-mail
Zobrazit kontaktní informace
Odeslat
 
 
 
 

Ve schránce je 0 inzerátů.

zobrazit celou schránku
 
 

Nalezli jsme dalších 64 nemovitostí v podobné ceně.

 
 
reklama