K prodeji, Byt 3+kk, 89 m2, Vavřinec

 
 
 
Lokalita:
Vavřinec
 
 
Cena:
7 315 000 Kč / za nemovitost
 
včetně provize
 
uvedená cena je: včetně provize Nabídněte prodejci Vaši cenu 
 
 

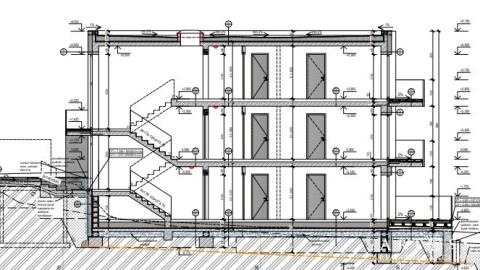
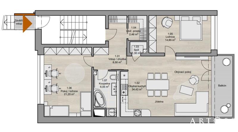
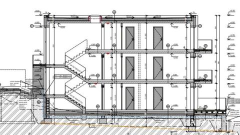
REZERVUJ DO 31.01.2026 a obdržíš poukaz v hodnotě 150.000,- Kč na kuchyňskou linku. Exkluzivní novostavba bytu s balkonem a nádherným výhledem – Vavřinec u Blanska Hledáte domov, který kombinuje klid, soukromí, luxusní prostor a kvalitní stavbu? Máme pro vás jedinečnou nabídku – prostorný, slunný byt v exkluzivním viladomě v malebném Vavřinci u Blanska. Tento cihlový dům nejvyšší kvality byl postaven s maximálním důrazem na energetickou úspornost a dlouhou životnost. Všechny stropy včetně střešní konstrukce jsou monolitické železobetonové, příčkové zdivo zděné, interiérové dveře vysoké 210 cm a po celém bytě je komfortní podlahové vytápění. Dominantou bytu je obývací pokoj s kuchyňským koutem o rozloze 34,4 m² s přímým vstupem na balkon (6,7 m²), odkud vás okouzlí nerušený výhled na okolní louky a lesy. Byt je navržen tak, aby poskytoval maximální ergonomii a prostor – nechybí ani samostatná zděná spíž v kuchyni a prostorná šatna u vstupu. Součástí prodeje je vlastní parkovací stání a sklepní kóje v suterénu domu. Viladům je koncipován s ohledem na absolutní soukromí – každý byt má promyšlené umístění, aby byl klid a maximální komfort . Dispozice bytu: Obývací pokoj s jídelnou: 34,43 m² Ložnice: 14,85 m² Pokoj: 21,20 m² Koupelna: 6,05 m² Chodba: 8,50 m² Spíž: 1,30 m² Balkon: 6,7 m² Sklep: 4,60 m² Užitná plocha bez balkonu a sklepa: 89 m² Lokalita: Vavřinec nabízí přímé autobusové spojení do Blanska a kouzlo bydlení v přírodě, přesto s dobrou dostupností města. Aktuálně pracujeme na dokončení bytů, předpokládaný termín kolaudace je koncem tohoto roku. Cena je za dokončený, zkolaudovaný byt bez kuchyňské linky. Dopřejte si domov, který má vše, doporučuji osobní prohlídku. Na konci fotogalerie průběh stavby.

 
zobrazit více
 
 
 


Doplňující informace:

ID inzerátu ESO: 4371181
Inzerát vydán: 21.11.2025
Inzerát aktualizován: 08.01.2026
Budova je z: Cihla
Stav: Velmi dobrý
Vlastnictví: Osobní
Umístění: Velmi dobrý
Obytná plocha: 89 m2
Balkón: 7m2
Užitná plocha: 89 m2
Energetická náročnost budovy:
B - Velmi úsporná
 
 

 

Bleskový dotaz makléři

K prodeji, Byt 3+kk, 89 m2, Vavřinec

Text dotazu *
Váš telefon *
Váš e-mail
Zobrazit kontaktní informace
Odeslat
 
 
 
 

Ve schránce je 0 inzerátů.

zobrazit celou schránku
 
 

Nalezli jsme dalších 10 nemovitostí v podobné ceně.

 
 
reklama