K prodeji, Byt 3+kk, 94 m2, Český Těšín, Ropická

 
 
 
Lokalita:
Český Těšín, Ropická
 
 
Cena:
5 400 000 Kč / za nemovitost
 
 
uvedená cena je: včetně provize Nabídněte prodejci Vaši cenu 
 
 

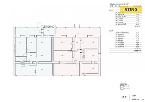
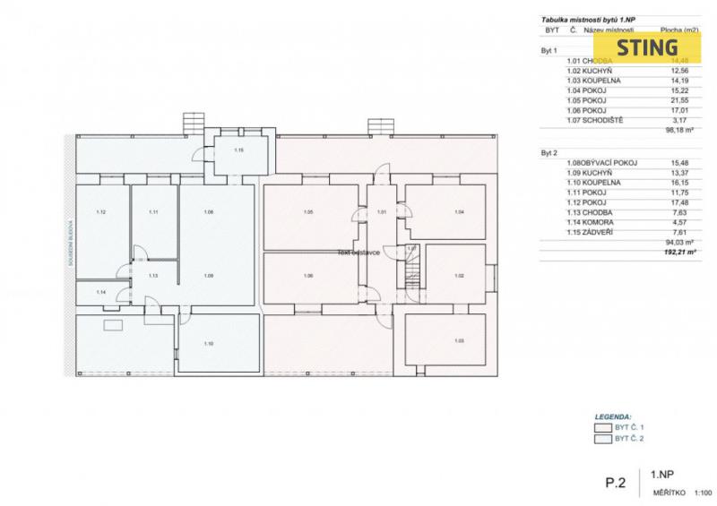
Prostorný byt 3+kk s parametry rodinného domu, dva vstupy, dvě zastřešené terasy, zahrada a parkovací stání – Dolní Žukov Nabízíme k prodeji moderně zrekonstruovaný byt o dispozici 3+kk a užitné ploše 94,2 m², umístěný v rodinném domě, ve kterém se nacházejí pouze dvě bytové jednotky. Nemovitost je situována v klidné a vyhledávané části Českého Těšína, Dolní Žukov. Byt disponuje dvěma samostatnými vchody, což výrazně zvyšuje komfort i flexibilitu využití. K jednotce náleží dvě zastřešené terasy, které přirozeně rozšiřují obytný prostor a umožňují příjemné posezení v jakémkoliv počasí. Součástí nabídky je pozemek o výměře 125 m² určený k užívání k tomuto bytu a zároveň společný podíl na pozemku o celkové výměře 866 m². K bytu dále náleží půdní prostor o výměře 75,36 m², přístřešek pro dvě vozidla, zahradní domek (29 m²) vhodný jako sklad či dílna a zajištěný přístup po příjezdové komunikaci. Rodinný dům i bytová jednotka prošly kompletní rekonstrukcí v roce 2025, díky které je nemovitost připravena k okamžitému a komfortnímu užívání. Interiér nabízí prostornou vstupní chodbu, velkorysý obývací pokoj s krbovou stěnou, dva samostatné pokoje a menší místnost, vhodnou jako pracovna nebo komora. Koupelna je aktuálně ve fázi dokončování, což umožňuje novému majiteli doladit finální podobu dle vlastního vkusu. Byt má samostatné měření energií. Tato nemovitost je ideální volbou pro ty, kteří hledají klidné a nadstandardní bydlení s pocitem vlastního domu, vysokou mírou soukromí a vlastním venkovním zázemím, přičemž veškerá občanská vybavenost města zůstává na dosah. Pro více informací nebo domluvení prohlídky mě neváhejte kontaktovat. Do konce března 2026 nabízíme prostřednictvím našeho partnera úrokové sazby od 4,29 % p.a. Více informací Vám sdělí náš specialista na prohlídce.

 
zobrazit více
 
 
 


Doplňující informace:

ID inzerátu ESO: 4378421
Inzerát vydán: 07.01.2026
Inzerát aktualizován: 25.02.2026
ID zakázky v RK: 134275
Budova je z: Cihla
Stav: Velmi dobrý
Vlastnictví: Osobní
Umístění: Velmi dobrý
Obytná plocha: 94 m2
Terasa: ANO
Užitná plocha: 94 m2
Podlahová plocha: 94 m2
Energetická náročnost budovy:
G - Mimořádně nehospodárná
 
 

 

Bleskový dotaz makléři

K prodeji, Byt 3+kk, 94 m2, Český Těšín, Ropická

Text dotazu *
Váš telefon *
Váš e-mail
Zobrazit kontaktní informace
Odeslat
 
 
 
 

Ve schránce je 0 inzerátů.

zobrazit celou schránku
 
 

Nalezli jsme dalších 11 nemovitostí v podobné ceně.

 
 
reklama