K prodeji, Byt 4+kk, 170 m2, Ostopovice, B. Němcové

 
 
 
exkluzivně
 
Lokalita:
Ostopovice, B. Němcové
 
 
Cena:
14 642 050 Kč / za nemovitost
 
 
Nabídněte prodejci Vaši cenu 
 
 

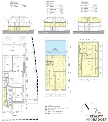
Jako vybraný zástupce majitele Vám exkluzivně nabízíme ke koupi moderní novostavbu bytu 4+kk o ploše 131 m² s velkou terasou 39 m² a vlastním parkovacím stáním. Byt se nachází v klidné části obce Ostopovice, v novém komorním domě se čtyřmi bytovými jednotkami. Tato nabídka kombinuje komfort rodinného domu s praktičností bytu – soukromí, dostatek prostoru i skvělou dostupnost do Brna. PROČ SI ZAMILUJETE TENTO BYT: Vlastní terasa 39 m² - prostor pro relaxaci, grilování a rodinné chvíle Vlastní parkovací místo - žádné starosti s parkováním Soukromý vstup - pocit rodinného domu s praktičností bytu Energetická třída A - minimální náklady na vytápění 15 minut do centra Brna - MHD i autem Výkonná klimatizace - celé horní patro příjemně chladí i topí DISPOZICE, KTERÁ DÁVÁ SMYSL: Mezonetový byt s promyšleným řešením prostoru: Prostorný obývací pokoj s kuchyní - přímý výstup na terasu 3 samostatné ložnice - ideální pro rodinu nebo home office Technická místnost - dostatek úložného prostoru Koupelna s WC + 1x samostatné WC - praktické řešení pro každodenní život MODERNÍ STANDARD BEZ KOMPROMISŮ: Rok dokončení 2025 - vše nové, bez skrytých vad Trojskla + venkovní žaluzie - tepelný a akustický komfort Podlahové vytápění - rovnoměrné teplo v celém bytě Rekuperace vzduchu - zdravé prostředí celoročně Kvalitní vinylové podlahy - krásné a praktické LOKALITA, KTEROU OCENÍTE: Ostopovice - to nejlepší z obou světů: Kompletní občanská vybavenost - obchod, škola, školka Cyklostezky a příroda - aktivní život přímo za dveřmi Rychlé spojení s Brnem - dálniční přivaděč 5 minut autem Klidné prostředí - pryč od městského ruchu, přesto blízko všemu INVESTICE DO BUDOUCNOSTI: Férová cena pod brněnským průměrem Energetická třída A = nízké náklady na vytápění Rostoucí hodnota v atraktivní lokalitě Možnost okamžitého nastěhování

 
zobrazit více
 
 
 


Doplňující informace:

ID inzerátu ESO: 4381346
Inzerát vydán: 24.01.2026
Inzerát aktualizován: 12.03.2026
ID zakázky v RK: 28805
Budova je z: Cihla
Stav: Velmi dobrý
Vlastnictví: Osobní
Umístění: Velmi dobrý
Obytná plocha: 170 m2
Terasa: 39m2
Užitná plocha: 170 m2
Podlahová plocha: 170 m2
Energetická náročnost budovy:
B - Velmi úsporná
 
 

 

Bleskový dotaz makléři

K prodeji, Byt 4+kk, 170 m2, Ostopovice, B. Němcové

Text dotazu *
Váš telefon *
Váš e-mail
Zobrazit kontaktní informace
Odeslat
 
 
 
 

Ve schránce je 0 inzerátů.

zobrazit celou schránku
 
 

Nalezli jsme dalších 415 nemovitostí v podobné ceně.

 
 
reklama