K prodeji, Byt >7+1, Mariánské Lázně, Třebízského

 
 
 
Lokalita:
Mariánské Lázně, Třebízského
 
 
Cena:
Info o ceně u RK
 
info o ceně v RK
 
uvedená cena je: bez provize Nabídněte prodejci Vaši cenu 
 
 

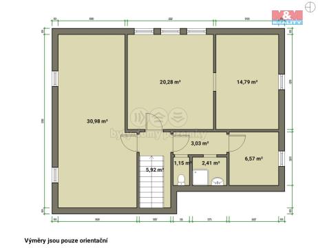
Nabízíme k prodeji atypický prostorný byt o dispozici 7+2 a celkové výměře 213 m², který lze případně rozdělit na dvě samostatné bytové jednotky. Ve 2. NP se nachází byt o dispozici 4+1 a ploše 134 m², ve 3. NP podkrovní byt 3+1 o výměře 79 m². Nemovitost je v původním, udržovaném stavu, vytápění zajišťuje vlastní plynový kotel. Cihlový dům má novou fasádu a zateplenou plechovou střechu. Nachází se v klidné lokalitě obklopené lesy a přírodou, přesto jen kousek od lázeňské kolonády v Mariánských Lázních. Skvělá příležitost pro vícegenerační bydlení, spojení bydlení a pronájmu či rekreace. Možnost přikoupit garáž u domu. Pro více informací či sjednání prohlídky kontaktujte makléře, který s Vámi vyřídí i případné financování hypotečním úvěrem.

 
zobrazit více
 
 
 


Doplňující informace:

ID inzerátu ESO: 4356055
Inzerát vydán: 29.08.2025
Inzerát aktualizován: 30.08.2025
ID zakázky v RK: 900910863
Budova je z: Cihla
Stav: Dobrý
Vlastnictví: Osobní
Umístění: Dobrý
Parkování: Garáž
Užitná plocha: 213 m2
Energetická náročnost budovy:
G - Mimořádně nehospodárná
 
 

 

Bleskový dotaz makléři

K prodeji, Byt >7+1, Mariánské Lázně, Třebízského

Text dotazu *
Váš telefon *
Váš e-mail
Zobrazit kontaktní informace
Odeslat
 
 
 
 

Ve schránce je 0 inzerátů.

zobrazit celou schránku
 
 

Nalezli jsme dalších 4 nemovitostí v podobné ceně.

 
 
reklama