K prodeji, dům, Pasohlávky

 
 
 
Lokalita:
Pasohlávky
 
 
Cena:
11 285 750 Kč / za nemovitost
 
včetně DPH, včetně provize
 
uvedená cena je: včetně provize, s DPH Nabídněte prodejci Vaši cenu 
 
 

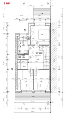
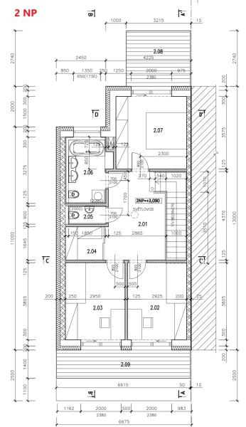
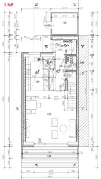
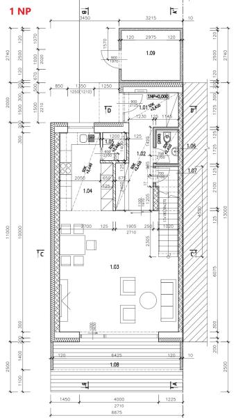
Výstavba nového cihlového řadového rodinného domu č. 15 v Pasohlávkách. Dům je energeticky velmi úsporný (třída A). Jedná se o řadový rodinný dům 4+kk na pobřeží Mušovských jezer ve druhé etapě výstavby projektu Rezidence Pasohlávky. Dům nabídne moderní a funkční dispozice, maximálně využitý prostor, dvě parkovací místa a pohodlné bydlení pro celou rodinu. Navržená dispozice může mít několik modifikací, jejich návrhy rádi zašleme, například až na 5+kk.

 
zobrazit více
 
 
 


Doplňující informace:

ID inzerátu ESO: 4328479
Inzerát vydán: 28.04.2025
Inzerát aktualizován: 27.11.2025
Budova je z: Cihla
Stav: Velmi dobrý
Umístění: Velmi dobrý
Plocha pozemku: 244 m2
Terasa: 34m2
Užitná plocha: 134 m2
Energetická náročnost budovy:
A - Mimořádně úsporná
 
 

 

Bleskový dotaz makléři

K prodeji, dům, Pasohlávky

Text dotazu *
Váš telefon *
Váš e-mail
Zobrazit kontaktní informace
Odeslat
 
 
 
 

Ve schránce je 0 inzerátů.

zobrazit celou schránku
 
 

Nalezli jsme dalších 40 nemovitostí v podobné ceně.

 
 
reklama