K prodeji, dům, Pasohlávky

 
 
 
Lokalita:
Pasohlávky
 
 
Cena:
7 980 000 Kč / za nemovitost
 
včetně DPH, včetně provize
 
uvedená cena je: včetně provize, s DPH Nabídněte prodejci Vaši cenu 
 
 

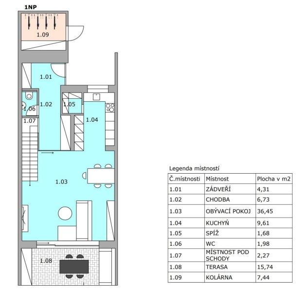
Řadový rodinný dům č. 2, právě ve výstavbě v Pasohlávkách. Dům je energeticky velmi úsporný (třída A) a disponuje třemi terasami o celkové rozloze 34 m² + dvě parkovací místa. Cihlová konstrukce budovy zaručuje dlouhou životnost a kvalitu. Ideální pro rodinu hledající pohodlné a moderní bydlení v klidné lokalitě s možností relaxace. a) domy jsou prodávány ve stavu tz. Super hrubé stavby, kdy exteriér a oplocení bude dokončeno. Na každém kupujícím bude, aby si dokončil dle svého uvážení, jaké technologie budou dům ovládat a jaké designové vybavení zde bude instalováno. b) nebo Vám dům můžeme dokončit dle našich standardů. Jedná se o řadový rodinný dům 4+kk na pobřeží Mušovských jezer ve druhé etapě výstavby projektu Rezidence Pasohlávky. Výstavba byla zahájena a stylově bude navazovat na designovou eleganci a kvalitu první úspěšné etapy. Dům nabídne moderní a funkční dispozice, maximálně využitý prostor, dvě parkovací místa a pohodlné bydlení pro celou rodinu. Navržená dispozice může mít několik modifikací, jejich návrhy rádi zašleme, například až na 5+kk. Zajištěn bude také dostatek užitkové vody pro závlahu a to z retenční nádrže.

 
zobrazit více
 
 
 


Doplňující informace:

ID inzerátu ESO: 4328484
Inzerát vydán: 28.04.2025
Inzerát aktualizován: 16.09.2025
Budova je z: Cihla
Stav: Velmi dobrý
Umístění: Velmi dobrý
Plocha pozemku: 202 m2
Terasa: 34m2
Užitná plocha: 134 m2
Energetická náročnost budovy:
A - Mimořádně úsporná
 
 

 

Bleskový dotaz makléři

K prodeji, dům, Pasohlávky

Text dotazu *
Váš telefon *
Váš e-mail
Zobrazit kontaktní informace
Odeslat
 
 
 
 

Ve schránce je 0 inzerátů.

zobrazit celou schránku
 
 

Nalezli jsme dalších 22 nemovitostí v podobné ceně.

 
 
reklama