K prodeji, dům, 79 m2, Solnice, Ještětická

 
 
 
exkluzivně
 
Lokalita:
Solnice, Ještětická
 
 
Cena:
6 420 000 Kč / za nemovitost
 
 
uvedená cena je: včetně provize Nabídněte prodejci Vaši cenu 
 
 

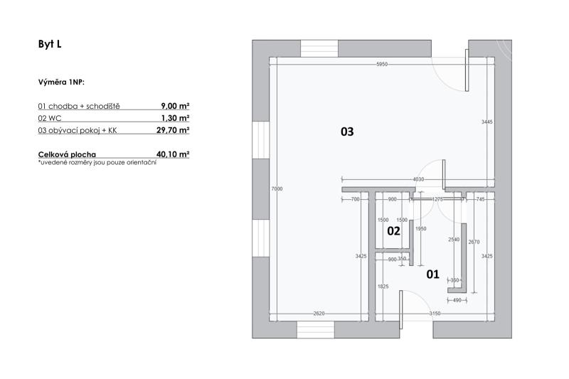
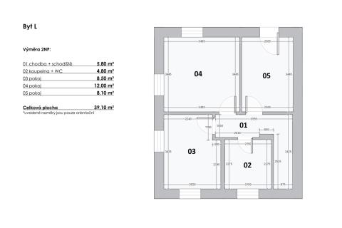
Moderní a vysoce úsporný rodinný dům v obci Solnice Kvasiny Hledáte klidné, moderní a ekologické bydlení? Tak zbystřete! V oblíbené a klidné lokalitě Solnice Kvasiny na vás čeká novostavba rodinného domu 4+kk o podlahové ploše 79,2 m², postavená na pozemku 202 m². Tento nízkoenergetický dům s hodnocením PENB A kombinuje stylovou architekturu s kvalitními materiály včetně perfektního zateplení. To vše doplněné solárními panely, které šetří vaši peněženku i planetu. Dispozice 4+kk je ideální pro mladou rodinu nebo pár, kteří chtějí klidné a pohodové bydlení. Efektivní dvě podlaží znamenají přirozené oddělení denní a noční části domu. ‍ ✨ Vychytávky, které si zamilujete: ✅ Možnost čerpání dotace Zelená úsporám až do výše 400.000 Kč – usnadní vám cestu k vlastnímu bydlení ✅ Soukromé parkovací stání přímo u domu ✅ Dům je obklopen malebnou zelení i blízkým rybníkem Lokalita, která má co nabídnout: 5 minut autem do Škoda Auto Kvasiny – ideální pro zaměstnance Vše potřebné po ruce – obchody, školka, škola, MHD i vlak Klidná a bezpečná ulice – ideální pro děti i domácí mazlíčky ‍‍‍‍ Nyní akční cena v rámci předprodeje. Za tuhle cenu získáte pohodové, zdravé a úsporné bydlení v krásné přírodě. Zavolejte mi nebo napište a domluvíme si prohlídku. Domy v této lokalitě se neohřejí dlouho!

 
zobrazit více
 
 
 


Doplňující informace:

ID inzerátu ESO: 4339353
Inzerát vydán: 11.06.2025
Inzerát aktualizován: 27.04.2026
ID zakázky v RK: 7198540
Budova je z: Montovaná
Vlastnictví: Osobní
Poloha objektu: Řadový
Zařízení bytu: Nezařízený
Užitná plocha: 79 m2
Plocha pozemku: 202 m2
Plyn: Není
Voda: Vodovod
Vytápění: Jiné
Parkování: Venkovní stání
Terasa: 6m2
Plocha zahrady: 162 m2
Zastavěná plocha: 40 m2
Energetická náročnost budovy:
A - Mimořádně úsporná
 
 

 

Bleskový dotaz makléři

K prodeji, dům, 79 m2, Solnice, Ještětická

Text dotazu *
Váš telefon *
Váš e-mail
Zobrazit kontaktní informace
Odeslat
 
 
 
 

Ve schránce je 0 inzerátů.

zobrazit celou schránku
 
 

Nalezli jsme dalších 36 nemovitostí v podobné ceně.

 
 
reklama