K prodeji, Rodinný dům, Břežany

 
 
 
Lokalita:
Břežany
 
 
Cena:
Info o ceně u RK
 
dohodou, cena k jednání
 
uvedená cena je: k jednání Nabídněte prodejci Vaši cenu 
 
 

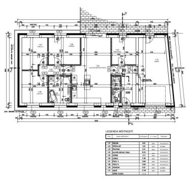
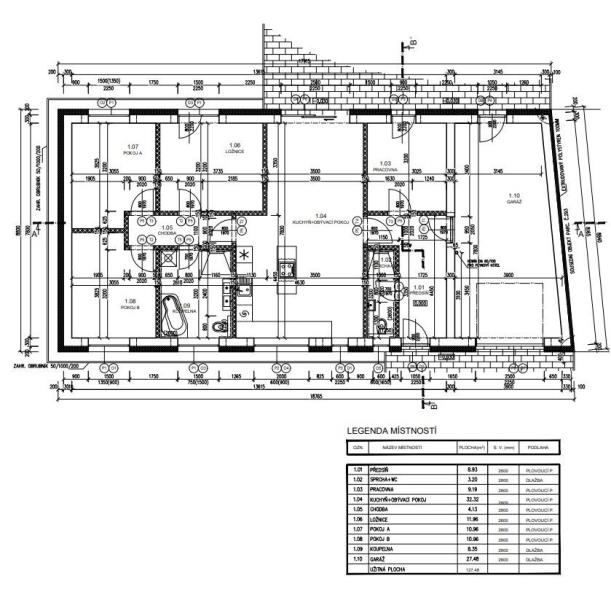
Exkluzivní nabídka vydařené novostavby rodinného domu 5+kk s garáží a zahradou v Břežanech, okres Znojmo. Jedná se o polorohový dům v klidné ulici s výhledem na jihozápad, který je právě dokončen a během března 2026 bude zkolaudován. K dispozici je prostorná garáž pro 1 vůz a dále 2 parkovací místa před garáží. Dům má velmi promyšlenou a praktickou dispozici s velmi citlivě vybranými kvalitními materiály a vkusně zvolenými barvami podlah, dveří, oken a drobných zařizovacích předmětů. Tento dům vyhovuje moderním standardům dnešního rodinného bydlení. Dům disponuje energetickou třídou B, což zaručuje nízké provozní náklady. Je zcela dokončen, jen předzahrádka a zahrada již čekají na realizaci novým majitelem. Celková plocha pozemku 429 m2, zahrada cca 350 m2, užitná plocha domu 127 m2. Dům je zděný (ytong) se sedlovou střechou, nepodsklepený a zateplený. Vybavení: plastová okna s trojskly, podlahové topení v celém domě včetně garáže, plynový kondenzační kotel zn. IMMERGAS, bojler 160 l, fotovoltaika na ohřev vody, příprava na předokenní žaluzie a klimatizaci, videotelefon, rekuperace vzduchu, sanitární výbava a zařizovací předměty zn. Ravak, Gelco a Hansgrohe, příprava na kabelový internet. Výměry místností: garáž s vraty na dálkové ovládání 27,48 m2 s umyvadlem/výlevkou a přípravou na pračku a sušičku, předsíň 8,93 m2, 1. koupelna s WC, umyvadlem a sprchovým koutem 3,20 m2, pracovna/šatna 9,19 m2, obývací pokoj s kuchyňským koutem 32,32 m2, chodba 4,13 m2, ložnice 11,96 m2, pokoj 10,96 m2, pokoj 10,96 m2, 2. koupelna s WC, vanou, sprchovým koutem a dvojumyvadlem 8,35 m2. Zahrada s budoucí terasou je přístupná z garáže, z ložnice i z obývacího pokoje. Veškeré IS – elektřina 220/380V, obecní vodovod, plyn, kanalizace. Dešťová voda je svedena do retenční nádrže na zahradě (možnost zalévání). Dům je k dispozici ihned, není zatížen žádným zástavním právem, možnost financovat hypotečním úvěrem. V případě koupě domu na firmu, možný odpočet DPH. Nabízíme Vám šanci získat svůj vlastní útulný domov, který se může stát místem plným klidu, lásky a pohody. Buďte rychlí, tato příležitost nemusí trvat dlouho! Dostupnost z Břežan do Brna je 30 min. autem, 25 min. do Znojma a 20 min od Městys Pohořelice. V obci je veškerá občanská vybavenost - obecní úřad, pošta, mateřská školka, základní škola, restaurace, cukrárna, obchod - potraviny, rybník. Bližší informace v RK.

 
zobrazit více
 
 
 


Doplňující informace:

ID inzerátu ESO: 4389017
Inzerát vydán: 09.03.2026
Inzerát aktualizován: 24.03.2026
Budova je z: Cihla
Stav: Velmi dobrý
Umístění: Velmi dobrý
Plocha pozemku: 429 m2
Užitná plocha: 127 m2
Energetická náročnost budovy:
B - Velmi úsporná
 
 

 

Bleskový dotaz makléři

K prodeji, Rodinný dům, Břežany

Text dotazu *
Váš telefon *
Váš e-mail
Zobrazit kontaktní informace
Odeslat
 
 
 
 

Ve schránce je 0 inzerátů.

zobrazit celou schránku
 
 

Nalezli jsme dalších 4 nemovitostí v podobné ceně.

 
 
reklama