K prodeji, Rodinný dům, Brodek u Prostějova, Vilapark

 
 
 
Lokalita:
Brodek u Prostějova, Vilapark
 
 
Cena:
7 790 000 Kč / za nemovitost
 
aktuálně rezervováno
 
Nabídněte prodejci Vaši cenu 
 
 

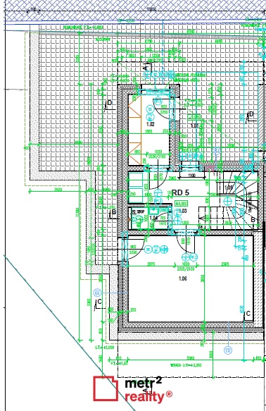
Hledáte moderní, technicky vyspělé, a především nízkonákladové bydlení v klidném prostředí blízko přírodě s vynikající dostupností do okolních měst? Pak pro vás máme novinku v Brodku u Prostějova. Objekt navrženého řadového domu „Novostavba 5 RD“ je součástí nově navržené řadové zástavby, která je řešena v návaznosti na nedávno budovanou lokalitu rodinných domů v jižní části městyse. Navrženy jsou řadové domy, dvoupodlažní, nepodsklepené. Jsou osazeny do svahu. Vstup je do 1. NP z přilehlé komunikace, vstup na terasu a do zahrady je z 2. NP balkonovými dveřmi. Objekty jsou v uliční čáře uskákány – plasticky členěny. Příchod a příjezd k řešeným RD je ze severozápadního směru z nově zpevněné komunikace, objekty rodinných domů jsou z této strany v rámci 2. NP předsazeny a venkovní plocha v úrovni 1. NP před objektem bude vydlážděná betonovou zámkovou dlažbou a bude sloužit pro parkování vozidel. Vydláždění bude provedeno investorem a bude navazovat na zpevněnou cestu. RD 5 je koncipován jako 3+kk + ateliér. Vstup do objektu RD 5 je ze závětří krytého předsazeného 2. NP do zádveří, dále do chodby se zákoutím pro technické systémy domu a se schodištěm do 2. NP. Dále v rámci 1. NP ještě WC s umyvadlem. Možnost vstupu z chodby do ateliéru. V druhém nadzemním podlaží navazuje schodiště na chodbu, ze které je vstup do ložnice, pokoje, do koupelny s vanou a s WC a do obytné místnosti – obývacího pokoje s kuchyňským koutem. Z tohoto prostoru je vstup na terasu. Část 2. NP, směrem do zahrady, je založena na zemině přímo v rámci 2. NP. Terasa je řešena ze zámkové dlažby do štěrkových vrstev. Základové konstrukce jsou řešeny jako základové desky tl. 400 mm z železobetonu s výztuží. Obvodové nosné zdivo, vnitřní nosné a nenosné zdivo je navrženo z Porothermu, z vnější strany zatepleného zateplovacím systémem s omítkou v barvě s šedými segmenty a barevnými pruhy dle pohledů. Stropní konstrukce železobetonové monolitické. Zastřešení stavby plochou střechou. Nášlapné vrstvy podlah uvnitř objektu z keramické dlažby a z vinylu. Výplně otvorů jsou řešeny plastové, zasklení trojsklo, vnitřní dveře v dřevěných obložkových zárubních. Jsou navrženy vnější žaluzie do podomítkových kastlů. VCM omítky, stropy z SDK desek pro možnost rozvodu rekuperace. Oplocení objektu pletivem na sloupky. Zastavěná plocha RD5 je 79,30 m2, užitná plocha domu 107,95 m2, obytná plocha 46,85 m2, zpevněná plocha (vstup + vjezd i pod 2. NP, terasa za objektem) 65,10 m2. Celková půdorysná velikost domu RD 5 je 12,00 x 6,48 m. Vytápění domu bude řešeno podlahovým vytápěním rohožemi, v soc. zázemí ještě doplněno o topné žebříky. Zdrojem teplé vody pro vytápění a TUV je navrženo tepelné čerpadlo vzduch/voda umístěné v 1. NP, doplněné zásobníkem na 125 l. Venkovní jednotka bude umístěna na severu strany v zastíněném prostoru pod 2. NP. Jako zdroj budou na střeše nainstalovány fotovoltaické panely. Větrání řešeno decentrálními jednotkami s rekuperací. Osvětlení LED zdroji. Standard domu je nastaven formou finančních budgetů. Nesmírnou přidanou hodnotou této nabídky je aktivní spolupráce s provádějící stavební firmou, pro kterou není problém cokoliv, je-li to v souladu s projektovou dokumentací, stavebním povolením a nebrání kolaudaci domu. PENB třídy A. Městys Brodek u Prostějova nabízí vše potřebné pro rodinný život. Je zde základní škola, mateřská školka, obchody, restaurace, lékař, za pár minut se dostanete na dálnici a pak lehce do Prostějova, Olomouce nebo do Brna. Bližší informace o projektu, podmínek rezervace, systému financování apod. vám poskytne RK.

 
zobrazit více
 
 
 


Doplňující informace:

ID inzerátu ESO: 4281683
Inzerát vydán: 30.09.2024
Inzerát aktualizován: 24.03.2026
Budova je z: Cihla
Stav: Ve výstavbě (nezkolaudováno)
Umístění: Ve výstavbě (nezkolaudováno)
Plocha pozemku: 236 m2
Terasa: ANO
Užitná plocha: 108 m2
Energetická náročnost budovy:
B - Velmi úsporná
 
 

 

Bleskový dotaz makléři

K prodeji, Rodinný dům, Brodek u Prostějova, Vilapark

Text dotazu *
Váš telefon *
Váš e-mail
Zobrazit kontaktní informace
Odeslat
 
 
 
 

Ve schránce je 0 inzerátů.

zobrazit celou schránku
 
 

Nalezli jsme dalších 29 nemovitostí v podobné ceně.

 
 
reklama