K prodeji, Rodinný dům, Dobrá

 
 
 
Lokalita:
Dobrá
 
 
Cena:
5 390 000 Kč / za nemovitost
 
 
uvedená cena je: včetně provize Nabídněte prodejci Vaši cenu 
 
 

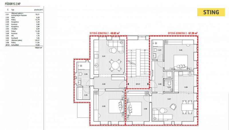
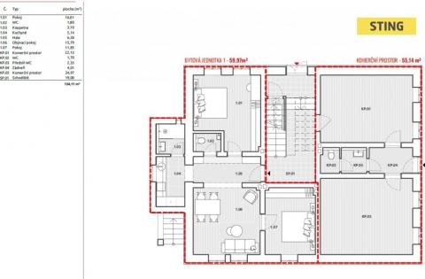
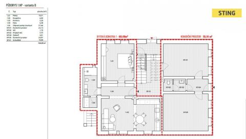
Nabízíme exkluzivně k prodeji cihlový rodinný dům v malebné obci Dobrá, který představuje jedinečnou příležitost pro ty, kteří hledají investici nebo prostorné bydlení. Na tomto domě byla nedávno zahájena pečlivá přestavba, jejímž cílem je vybudování tří zcela nových bytových jednotek, které se budou lišit svou velikostí, aby vyhovovaly různorodým potřebám budoucích obyvatel. Kromě toho je v plánu vybudovat také jeden nebytový prostor, který může sloužit jako kancelář nebo obchodní prostor. Dům je přístupný hlavním vchodem, za kterým se nachází široké schodiště vedoucí jak k jednotlivým bytům v přízemí, tak i do vyšších pater, což zajišťuje pohodlný přístup a rozdělení prostoru. V současné době byly již provedeny důkladné bourací práce, které připravily prostor pro další stavební úpravy. Nově byly vyzděny některé příčky, které pomáhají definovat nové dispozice bytů, a byl rovněž proveden rozvod vody, odpadů a ústředního topení ke každému z bytů v prvním a druhém nadzemním podlaží. Navíc byly do půdního prostoru vyvedeny stoupačky, což tento prostor činí ideálním pro potenciální vestavbu dalších bytů, rozšiřujících obytnou kapacitu domu. Střecha domu a její plechová krytina jsou v dobrém stavu, což může být pro budoucí majitele velkou výhodou, neboť nebude vyžadována okamžitá investice do její obnovy. Celková velikost pozemku činí 647 m², z čehož je 340 m² určeno jako zastavěná plocha včetně nádvoří a zbývajících 307 m² tvoří zahrada, která nabízí prostor pro relaxaci nebo zahradničení. K domu náleží také kompletní přípojky na elektřinu, vodu a plyn, což poskytuje pohodlí moderního bydlení. Odpady jsou prozatím svedeny do vlastního septiku, což je řešení, které může být v budoucnu přizpůsobeno potřebám nového majitele. Nemovitost se nachází v klidné a vyhledávané lokalitě nedaleko centra obce, která zaručuje výbornou dostupnost všech důležitých služeb, jako jsou obchody, školy nebo lékařská péče. Tento dům je ideální jak pro ty, kteří hledají budoucí vlastní bydlení pro rozšířenou rodinu, tak i jako atraktivní investiční příležitost pro menší developery, kteří chtějí rozšířit svůj portfolio. Pro vážné zájemce je k dispozici částečná dokumentace budoucího stavu, která poskytne lepší představu o potenciálu tohoto projektu. Pro více informací a prohlídku nemovitosti mě neváhejte kontaktovat.

 
zobrazit více
 
 
 


Doplňující informace:

ID inzerátu ESO: 3920031
Inzerát vydán: 10.04.2021
Inzerát aktualizován: 28.11.2025
ID zakázky v RK: 97863
Budova je z: Cihla
Stav: Dobrý
Umístění: Dobrý
Plocha pozemku: 647 m2
Balkón: 6m2
Užitná plocha: 600 m2
Podlahová plocha: 300 m2
Plocha sklepa: 100 m2
Plocha zahrady: 300 m2
Zastavěná plocha: 200 m2
Energetická náročnost budovy:
G - Mimořádně nehospodárná
 
 

 

Bleskový dotaz makléři

K prodeji, Rodinný dům, Dobrá

Text dotazu *
Váš telefon *
Váš e-mail
Zobrazit kontaktní informace
Odeslat
 
 
 
 

Ve schránce je 0 inzerátů.

zobrazit celou schránku
 
 

Nalezli jsme dalších 27 nemovitostí v podobné ceně.

 
 
reklama