K prodeji, Rodinný dům, Horní Vltavice

 
 
 
exkluzivně
 
Lokalita:
Horní Vltavice
 
 
Cena:
3 950 000 Kč / za nemovitost
 
vč. všech realitních a právních služeb
 
Nabídněte prodejci Vaši cenu 
 
 

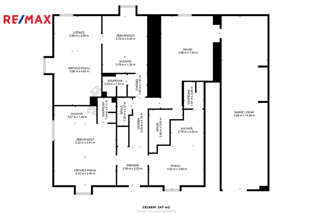
Jste velká rodina, která chce bydlet pohromadě, nebo se jen rekreačně setkávat, či podnikat v oblasti ubytování, a to vše v lokalitě srdci přírody se širokým sportovním a rekreačním využitím? Obec Horní Vltavice se nachází v klidné části Šumavy, horní zakončení Hornovltavické brázdy pod Basumským hřbetem. V obci je MŠ, ZŠ, obchod, lyžařský areál… . Další lyžařský areál je v obci Kubova Huť/3 km. Dále cyklostezky, stezky pro pěší, nedotčená příroda. Hraniční přechod Strážný (SRN)/8 km. Samostatně stojící nemovitost se nachází na klidném a slunném místě obce, mimo hlavní komunikaci. K domu náleží pozemek o výměře 280 m2. Parkování u domu. Celková užitná plocha nemovitosti je 247 m2. Vše rozloženo v 1. NP bez podsklepení. DISPOZICE: 4x samostatný pokoj, 3x kuchyňský kout, 3x koupelna se sprchovým koutem a toaletou. Dále velký sklad, možnost individuálního využití např. dílna, kolárna/lyžárna atd. Nechybí technická místnost s boilery, toaletou a prostorem pro čistící prostředky, vysavač a další náležitosti k údržbě domu. Některé pokoje jsou odděleny pouze příčkou, tudíž lze dispozice upravit. Půdorys nemovitosti k dispozici v sekci fotografie. Součástí domu je stodola s výměrou 57 m2. Je zcela na novém majiteli, jak prostor využije. Může zde parkovat, skladovat dřevo na otop atd. Nesmíme opomenout velkou půdu, která nabízí dalších 200 m2 k využití podlahové plochy. Výhodou je přístup po betonovém schodišti přímo z obytné části domu. Dům je napojen na obecní vodovod a kanalizaci. Vytápění je řešeno el. topidly a 2x krbová kamna. Koupelny mají el. podlahové topení. Dům se prodává vč. kompletního vybavení. K domu je projektová a stavební dokumentace. Zatím není vyhotoven PENB, proto je uvedena hodnota „G“. Doporučujeme prohlídku! V případě otázek, nebo zájmu o prohlídku kontaktujte makléře nabídky. Výhodné financování zajistíme zcela zdarma.

 
zobrazit více
 
 
 


Doplňující informace:

ID inzerátu ESO: 4319178
Inzerát vydán: 17.03.2025
Inzerát aktualizován: 28.01.2026
ID zakázky v RK: 409884
Budova je z: Smíšená
Stav: Dobrý
Umístění: Dobrý
Plocha pozemku: 597 m2
Užitná plocha: 247 m2
Plocha zahrady: 280 m2
Zastavěná plocha: 315 m2
Energetická náročnost budovy:
G - Mimořádně nehospodárná
 
 

 

Bleskový dotaz makléři

K prodeji, Rodinný dům, Horní Vltavice

Text dotazu *
Váš telefon *
Váš e-mail
Zobrazit kontaktní informace
Odeslat
 
 
 
 

Ve schránce je 0 inzerátů.

zobrazit celou schránku
 
 

Nalezli jsme dalších 13 nemovitostí v podobné ceně.

 
 
reklama