K prodeji, Rodinný dům, Hradec Králové, Malá

 
 
 
Lokalita:
Hradec Králové, Malá
 
 
Cena:
11 862 000 Kč / za nemovitost
 
včetně právního servisu
 
uvedená cena je: včetně právního servisu Nabídněte prodejci Vaši cenu 
 
 

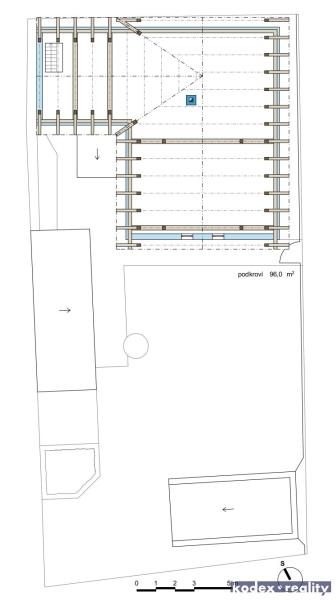
Nabízíme na prodej prostorný rodinný dům 4+kk s garáží a dvěma terasami v klidné a žádané části Hradce Králové, místní části Pouchov v Malé ulici. Dům nabízí dispozici 4+kk a má velkorysé podkroví s možností budoucí vestavby, je tedy ideální volbou pro pohodové rodinné bydlení s výbornou dostupností služeb i centra města. Užitná plocha domu je 81,5 m², podkroví 96 m² (aktuálně neobytné, připravené k vestavbě), garáž 16,6 m². Celková plocha pozemku činí 404 m². Dispozice: obývací pokoj s kuchyňským koutem, dvě ložnice, pracovna/dětský pokoj, koupelna, samostatné WC. Interiér prošel rozsáhlou rekonstrukcí (r. 2020 - štuky, vinylové podlahy, obložkové dveře, kuchyň, koupelna, WC i ložnice) a po kompletní rekonstrukci jsou z téhož roku i vnitřní rozvody (voda, kanalizace, elektroinstalace, vytápění). Parkování - garáž a v ulici před domem. Zahrada s jezírkem, dvě terasy, venkovní sklad a studna s užitkovou vodou. Topení plynovým kotlem, ohřev vody elektrickým bojlerem. Pitná voda z městského řadu, užitková voda ze studny na zalévání. Stavební historie domu: postaven r. 1933, rozsáhlá přestavba v 70. letech. Poslední rekonstrukce interiéru a instalací v r. 2020. Pouchov je tichá obytná čtvrť v Hradci Králové s výbornou dopravní dostupností a kompletní občanskou vybaveností. V pěší vzdálenosti se nachází supermarket Kaufland, zastávky MHD, škola, školka i další služby. Ideální lokalita pro klidné rodinné bydlení se zelení v okolí a výborným napojením na centrum města.

 
zobrazit více
 
 
 


Doplňující informace:

ID inzerátu ESO: 4370928
Inzerát vydán: 20.11.2025
Inzerát aktualizován: 15.04.2026
Budova je z: Cihla
Stav: Velmi dobrý
Umístění: Velmi dobrý
Plocha pozemku: 404 m2
Terasa: ANO
Užitná plocha: 81 m2
Energetická náročnost budovy:
G - Mimořádně nehospodárná
 
 

 

Bleskový dotaz makléři

K prodeji, Rodinný dům, Hradec Králové, Malá

Text dotazu *
Váš telefon *
Váš e-mail
Zobrazit kontaktní informace
Odeslat
 
 
 
 

Ve schránce je 0 inzerátů.

zobrazit celou schránku
 
 

Nalezli jsme dalších 24 nemovitostí v podobné ceně.

 
 
reklama