K prodeji, Rodinný dům, Karviná, Ráj

 
 
 
exkluzivně
 
Lokalita:
Karviná, Ráj
 
 
Cena:
8 290 000 Kč / za nemovitost
 
 
Nabídněte prodejci Vaši cenu 
 
 

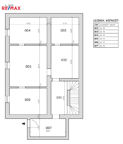
Ve výhradním zastoupení majitele Vám nabízíme dvougenerační rodinný dům v Karviné- Ráji. Dům o zastavěné ploše 114 m², má dvě nadzemní a jedno podzemní podlaží. Je v udržovaném stavu s fotovoltaikou s ostrovním systémem. Výměra oploceného pozemku 2 611 m². V 1.NP se nachází bytová jednotka 3+1 s možnosti rozšíření na 4+1 o podlahové ploše 93 m². Ze zádveří můžeme vstoupit do chodby a dále do kuchyně, nebo do 1.NP. Žádné zbytečné haly nebo prostorné chodby - vše účelné a jednoduché. Z kuchyně vstup do koupelny nebo obývacího pokoje a dále do ložnice a dětského pokoje. Ze zádveří můžete využít i vstup na WC a do druhé koupelny – tohle oceníte hlavně v letních měsících při trávení volného času na zahrádce. Ve 2.NP se nachází bytová jednotka 3+1 o podlahové ploše 85 m² i zde je možnost rozšíření na 4+1. Dispozice je totožná. Kuchyně, obývací pokoj, ložnice, dětský pokoj, koupelna a terasa. Všechny obytné místnosti mají okna JZ směrem. Nikde žádné zbytečné chodby. V celém domě betonové podlahy i stropy, vyměněny okna a vstupní dveře PVC. Podzemní podlaží má podlahovou plochu 93 m² a nachází se zde 5 skladovacích prostor a kotelna. Vytápění ústředním topením s automat. kotlem na peletky s ohřevem teplé vody. Sklep je suchý bez vlhkosti. Fotovoltaika zprovozněná 4/2022 s ostrovním systémem (baterie). Na zahradě zděná garáž, hospodářská budova – zastavěná plocha 40 m², se sedlovou střechou a dalšími úložnými prostory. A také schválená studna, venkovní posezení a parkovací stání… Pozemek o výměře 1 609 m² lze využít ke stavbě jednoho, případně dvou rodinných domů. Je celo oplocený s výhledem do zeleně s dostatkem slunce. Dle platného územního plánu se jedná o plochu Bydlení individuální BI. Hlavní využití -bydlení v rodinných domech. Intenzita využití stavebního pozemku-index zastavění max. 25%. Elektřina, plyn, voda i kanalizace v blízkosti pozemku, s možností napojení. Uvedené plochy jsou pouze orientační. To nejdůležitější - klidná část města, žádný satelit... V Karviné je kompletní občanská vybavenost. Dvě nemocnice, obchody, restaurace, pošty, lékárny, mateřské školy, základní školy, Slezská univerzita, Lázně Darkov, stadiony- zimní, fotbalový a další sportoviště, golf, bazény, koupaliště, Darkovské moře… Dům se nachází ve slepé ulici s asfaltovou komunikací, zimní údržba je zajištěna. Proč tato nemovitost ? -dvougenerační bydlení -bydlení pro jednu rodinu s možnosti vybudovat posilovnu, hernu, saunu… -bydlení, podnikání, kanceláře… -investice, pronájem… -na pozemku možnost výstavby rodinných domů. Možnost získání velmi zajímavých dotačních titulů na kompletní rekonstrukci: Zelená úsporám, Oprav dům po babičce… Výborná dopravní dostupnost do okolních měst: Ostrava, Frýdek-Místek, Český Těšín. Bus, vlak, dálnice. S financováním Vám rádi pomohou naší finanční specialisté. Pro bližší informace nebo termín sjednání schůzky mne prosím kontaktujte.

 
zobrazit více
 
 
 


Doplňující informace:

ID inzerátu ESO: 4336733
Inzerát vydán: 29.05.2025
Inzerát aktualizován: 25.11.2025
ID zakázky v RK: 415571
Budova je z: Cihla
Stav: Dobrý
Umístění: Dobrý
Plocha pozemku: 2611 m2
Užitná plocha: 140 m2
Podlahová plocha: 272 m2
Plocha sklepa: 93 m2
Plocha zahrady: 2611 m2
Zastavěná plocha: 114 m2
Energetická náročnost budovy:
G - Mimořádně nehospodárná
 
 

 

Bleskový dotaz makléři

K prodeji, Rodinný dům, Karviná, Ráj

Text dotazu *
Váš telefon *
Váš e-mail
Zobrazit kontaktní informace
Odeslat
 
 
 
 

Ve schránce je 0 inzerátů.

zobrazit celou schránku
 
 

Nalezli jsme dalších 48 nemovitostí v podobné ceně.

 
 
reklama