K prodeji, Rodinný dům, Králův Dvůr, Na Vyhlídce

 
 
 
exkluzivně
 
Lokalita:
Králův Dvůr, Na Vyhlídce
 
 
Cena:
12 490 000 Kč / za nemovitost
 
 
Nabídněte prodejci Vaši cenu 
 
 

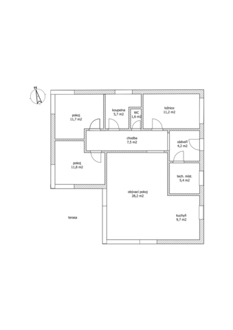
Nabízíme k prodeji moderní přízemní rodinný dům typu bungalov, který byl kolaudován v roce 2018 a nachází se v klidné části Králova Dvora u Berouna, v ulici Na Vyhlídce. Tato lokalita je ceněná pro svou dostupnost, zeleň a vysokou kvalitu rezidenčního prostředí. Dům má užitnou plochu 97,1 m² a je umístěn na pozemku o výměře 645 m². Jedná se o dřevostavbu se zateplením tloušťky 12 cm a sedlovou střechou KM Beta. Plastová okna s izolačním trojsklem přispívají k energetické efektivitě domu. Interiérové dveře a zárubně jsou dřevěné. Dispozičně dům nabízí tři ložnice, prostorný obývací pokoj s kuchyňským koutem, koupelnu s vanou, sprchovým koutem a dvěma umyvadly, samostatné WC s malým umyvadlem, technickou místnost a vstupní zádveří. Obývací pokoj má dvě prosklené stěny orientované na jih, které zajišťují dostatek denního světla a přímý vstup na terasu a k bazénu. Kuchyňská linka je vyrobena na míru a vybavena granitovým dřezem, indukční varnou deskou, elektrickou a mikrovlnnou troubou, digestoří a myčkou. V pracovně a ložnici se nacházejí vestavěné skříně s dostatkem úložného prostoru. Předsíň poskytuje přístup na půdu, která slouží pro skladování. V obytných místnostech je položena kvalitní vinylová podlaha, v koupelně, WC, technické místnosti a zádveří je keramická dlažba. Vytápění domu zajišťuje elektrický kotel v kombinaci s krbovou vložkou s výměníkem, která je napojena na topný systém. V celém domě je instalováno podlahové vytápění s centrálním termostatem. Pro ohřev teplé vody slouží elektrický bojler značky Dražice s objemem 160 litrů. Technická místnost je vybavena výlevkou a podlahovým odtokem. Odpadní voda je svedena do tlakové kanalizace s přečerpávací jímkou. Součástí zahrady je zapuštěný bazén o objemu 18 m³ s rozměry 5,5 × 3,7 metru, pískovou filtrací a solární plachtou. U bazénu se nachází terasa s příjemným posezením, ideální pro letní odpočinek nebo rodinné grilování. Dále je na pozemku akumulační nádrž na dešťovou vodu o objemu 5 m³, podružný vodoměr pro zalévání, venkovní osvětlení a samostatný sklad o ploše 7,5 m². Vjezdová brána je vybavena elektrickým pohonem s dálkovým ovládáním a umožňuje komfortní parkování dvou vozidel na vlastním pozemku. Celý pozemek je oplocen a zahrada je osázena okrasnou zelení, která dotváří příjemnou atmosféru. Králův Dvůr nabízí velmi dobrou občanskou vybavenost – nachází se zde základní i mateřská škola, obchody, pošta, lékárna a další služby. V nedalekém Berouně je k dispozici kompletní městská infrastruktura včetně zdravotnických zařízení, nákupních center, restaurací a sportovišť. V současnosti v Králově Dvoře probíhá výstavba moderní kulturně-sportovní haly. Okolní krajina je bohatá na zeleň a poskytuje ideální podmínky pro volnočasové a sportovní aktivity. Výborná je také dopravní dostupnost do Prahy – nájezd na dálnici D5 je vzdálen jen několik minut a okraj hlavního města je dosažitelný do 17 minut jízdy. Měsíční náklady na elektřinu činí přibližně 4 300 Kč.

 
zobrazit více
 
 
 


Doplňující informace:

ID inzerátu ESO: 4356253
Inzerát vydán: 30.08.2025
Inzerát aktualizován: 23.10.2025
ID zakázky v RK: 17094
Budova je z: Dřevostavba
Stav: Velmi dobrý
Umístění: Velmi dobrý
Plocha pozemku: 645 m2
Užitná plocha: 97 m2
Podlahová plocha: 97 m2
Zastavěná plocha: 116 m2
Energetická náročnost budovy:
B - Velmi úsporná
 
 

 

Bleskový dotaz makléři

K prodeji, Rodinný dům, Králův Dvůr, Na Vyhlídce

Text dotazu *
Váš telefon *
Váš e-mail
Zobrazit kontaktní informace
Odeslat
 
 
 
 

Ve schránce je 0 inzerátů.

zobrazit celou schránku
 
 

Nalezli jsme dalších 27 nemovitostí v podobné ceně.

 
 
reklama