K prodeji, Rodinný dům, Plzeň, Na Výhledech

 
 
 
exkluzivně
 
Lokalita:
Plzeň, Na Výhledech
 
 
Cena:
15 987 000 Kč / za nemovitost
 
 
Rezervováno Nabídněte prodejci Vaši cenu 
 
 

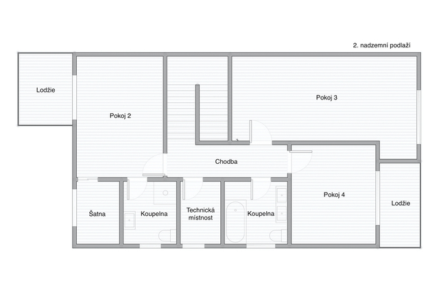
K prodeji nabízíme novostavbu rodinného domu se zahradou v Plzni v Liticích, v ulici Na Výhledech. Nemovitost je součástí nově vybudované rezidenční čtvrti s kompletní infrastrukturou, inženýrskými sítěmi, veřejným osvětlením i zastávkou MHD. Dům je situován na atraktivním místě s působivým výhledem na přehradní nádrž České údolí a okolní krajinu. Vyniká praktickým dispozičním řešením, kvalitním zpracováním a velmi nízkou energetickou náročností (třída B), která zaručuje nízké provozní náklady. Většinu obytné části přízemí zaujímá obývací pokoj, jehož dominantou je krbová vložka s kamenným obložením. Navazující kuchyně s jídelnou jsou součástí otevřeného prostoru. Velká francouzská okna nejen opticky zvětšují tento prostor, ale zároveň umožňují vstup na terasu. Přízemí domu je dále členěno na vstupní chodbu, menší místnost vhodnou jako pracovna, koupelnu s toaletou, komoru pod schodištěm a garáž propojenou s interiérem domu. V patře se nachází hlavní ložnice s vlastní koupelnou, šatnou a vstupem na východně orientovaný balkon. Dále jsou zde dva samostatné pokoje, z nichž jeden má přímý vstup na západně orientovanou lodžii. Patro doplňuje třetí koupelna s toaletou a technická místnost s přípojkou na pračku i sušičku. Rodinný dům postavený z broušených cihelných bloků s tepelnou izolací, je v nadstandardním provedení, které zahrnuje kvalitní plastová okna a posuvné dveře (HS portál) s izolačním trojsklem, venkovní žaluzie u velkoformátových oken, bezpečnostní vchodové dveře a interiérové dveře v nadstandardní výšce, podlahové teplovodní vytápění v celém interiéru s možností regulace v každé místnosti, vinylové podlahy v kombinaci s keramickou dlažbou, obklady i sanitu od renomovaných výrobců a moderní kuchyňskou linku včetně vestavných spotřebičů. Kvalitu provedení podtrhuje schodiště ze žulové dlažby a klimatizace ve všech pokojích. Vytápění i ohřev vody zajišťuje plynový kotel. Objekt je napojen na všechny inženýrské sítě (elektro, plyn, voda, kanalizace). Pozemek je kompletně oplocen, s automatickou vjezdovou bránou a vstupními vrátky s elektrickým zámkem. Před domem je zpevněná plocha ze zámkové dlažby umožňující parkování pro dva automobily mimo garáž. Litice nabízejí skvělé rekreační podmínky, přímou dostupnost MHD (BUS č. 21), rychlé napojení na dálnici D5 a kompletní občanskou vybavenost včetně mateřské a základní školy. Výstavbu zajistila společnost BUILDING PLZEŇ, s.r.o. s mnoha letými zkušenostmi s výstavbou rodinných a bytových domů. Konečná cena včetně provize RK, kompletního právního servisu a advokátní úschovy kupní ceny činí 15.987.000 Kč. Případnou hypotéku vám zdarma zajistíme. Pro bližší informace či domluvení prohlídky volejte na uvedený mobilní telefon.

 
zobrazit více
 
 
 


Doplňující informace:

ID inzerátu ESO: 4361353
Inzerát vydán: 24.09.2025
Inzerát aktualizován: 16.10.2025
ID zakázky v RK: 1093
Budova je z: Cihla
Stav: Velmi dobrý
Umístění: Velmi dobrý
Plocha pozemku: 422 m2
Užitná plocha: 175 m2
Podlahová plocha: 186 m2
Energetická náročnost budovy:
B - Velmi úsporná
 
 

 

Bleskový dotaz makléři

K prodeji, Rodinný dům, Plzeň, Na Výhledech

Text dotazu *
Váš telefon *
Váš e-mail
Zobrazit kontaktní informace
Odeslat
 
 
 
 

Ve schránce je 0 inzerátů.

zobrazit celou schránku
 
 

Nalezli jsme dalších 22 nemovitostí v podobné ceně.

 
 
reklama