K prodeji, Rodinný dům, Pozořice, Nad Ostrůvkem

 
 
 
Lokalita:
Pozořice, Nad Ostrůvkem
 
 
Cena:
Info o ceně u RK
 
včetně provize RK, právního servisu,
 
Nabídněte prodejci Vaši cenu 
 
 

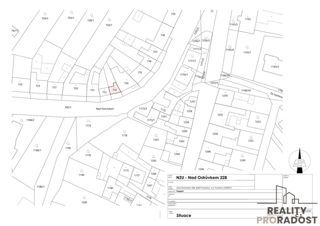
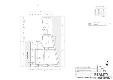
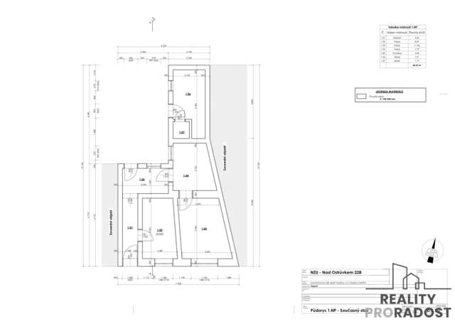
Nabízíme k prodeji řadový rodinný dům v Pozořicích. Zastavěná plocha a nádvoří o celkové výměře 120 m2 v okrese Brno- venkov , který je vhodný jako investice nebo ke kompletní rekonstrukci dle vlastních představ. Součástí prodeje je také vypracovaný stávající stav RD k čerpání dotačního titulu programu Nová zelená úsporám. Rodinný dům lze rozšířit o půdní vestavbu. Po realizaci rekonstrukce s půdní vestavbou by užitná plocha domu činila cca 70 m2 . Situace stávajícího stavu na první patro je vypracovaná projektantem s možností vyřízení dotací k rekonstrukci a výhodného financování z dotačního titulu s úrokovou sazbou 3%. Dům je částečně podsklepený. V RD je zavedená elektřina. Voda, plyn a kanalizační přípojka se nachází na hranici pozemku. Za domem se rozprostírá menší zahrádka, ideální pro relaxaci. Pozořice se nachází v okrese Brno-venkov, vzdálené přibližně 15 km východně od Brna. V obci se nachází kompletní občanská vybavenost – škola, školka, obchody, pošta i zdravotní služby. Energetický štítek nebyl dodán majitelem, proto je uvedena třída G. Pro více informací či domluvu osobní prohlídky kontaktujte makléřku.

 
zobrazit více
 
 
 


Doplňující informace:

ID inzerátu ESO: 4364612
Inzerát vydán: 15.10.2025
ID zakázky v RK: 27927
Budova je z: Cihla
Stav: Před rekonstrukcí
Umístění: Před rekonstrukcí
Plocha pozemku: 120 m2
Užitná plocha: 46 m2
Podlahová plocha: 120 m2
Zastavěná plocha: 46 m2
Energetická náročnost budovy:
G - Mimořádně nehospodárná
 
 

 

Bleskový dotaz makléři

K prodeji, Rodinný dům, Pozořice, Nad Ostrůvkem

Text dotazu *
Váš telefon *
Váš e-mail
Zobrazit kontaktní informace
Odeslat
 
 
 
 

Ve schránce je 0 inzerátů.

zobrazit celou schránku
 
 

Nalezli jsme dalších 11 nemovitostí v podobné ceně.

 
 
reklama