K prodeji, Rodinný dům, Přední Výtoň

 
 
 
exkluzivně
 
Lokalita:
Přední Výtoň
 
 
Cena:
9 850 000 Kč / za nemovitost
 
 
Nabídněte prodejci Vaši cenu 
 
 

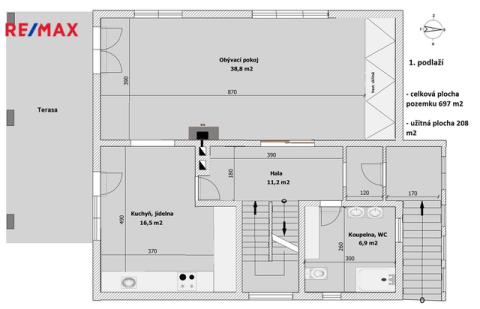
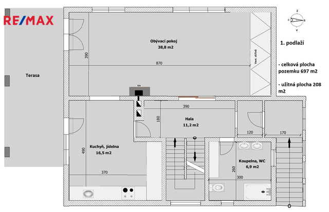
Nabízíme k prodeji zděný rodinný dům v obci Přední Výtoň vzdálené 7 km z Lipna nad Vltavou. Umístěný je v klidné, okrajové části obce s výhledem na vodní nádrž Lipno (550 m). Součástí pozemku o celkové výměře 697 m2 je kompletně podsklepený, dvoupodlažní dům o zastavěné ploše 108 m2, který disponuje užitnou plochou cca 208 m2. Kolaudován byl v r. 1995, ale v průběhu let byl velmi pečlivě udržován a také modernizován: první nadzemní podlaží je po celkové rekonstrukci, v části výměna oken, přístavba pergoly aj. Obytná část disponuje dvěma bytovými jednotkami a je členěna ve dvou podlažích. V 1. nadzemním podlaží se nachází vstupní veranda, předsíň, chodba, obývací pokoj prostorem na spaní je propojený s jídelním a kuchyňským a koutem a je z něj přímý vstup na venkovní, zastřešenou terasu. Dále je zde koupelna s velkým sprchovým koutem a WC, vytápěná elektrickými podlahovými rozvody. Z chodby je přístup do druhého podlaží, kde jsou dva pokoje, koupelna se sprchovým koutem a s WC, šatna a samostatná kuchyně. V chodbě je výlez na půdu, kde by byla možnost vybudování podkroví o vel. cca 60 m2. V technickém přízemí domu je bývalá garáž, sloužící jako pracovna, další tři místnosti, z nichž v jedné je příprava na prádelnu a kotelna. Dům se prodává vybavený vestavěnými skříněmi v koupelně, předsíni a obývacím pokoji, prostornou zánovní kuchyňskou linkou se spotřebiči v 1. NP a dalším dle domluvy. Dispozici domu a jednotlivých podlaží najdete na přiloženém orientačním půdorysu. Součástí je garáž s průchodem na zahradu, zahradní domek a kůlny na uskladnění dřeva a dalšího příslušenství. Dále částečně prosklená terasa s pergolou. Oplocená zahrada je osázená množstvím okrasných dřevin, díky nimž je na celém pozemku příjemné soukromí. Parkování je možné v garáži nebo na vydlážděné ploše před ní. Ohřev vody je řešený elektrickým bojlerem, vytápění domu je kombinací plynu (zásobník na propan na zahradě) a lokálního topení pomocí krbové vložky s rozvodem teplého vzduchu i do 2. NP. Dalším vybavením domu je centrální vysavač. Nemovitost doporučuji klientům, kteří hledají prostorný dům v krásné lokalitě obklopené přírodou, v blízkosti vodní nádrže, a přitom v části obce, kde není nadměrný pohyb turistů. Dům je vhodný jak k trvalému bydlení, tak je ho možné využívat ke krátkodobému pronájmu. V obci je základní občanská vybavenost, komplexní pak v Lipně n. Vltavou nebo Loučovicích.

 
zobrazit více
 
 
 


Doplňující informace:

ID inzerátu ESO: 4333743
Inzerát vydán: 19.05.2025
Inzerát aktualizován: 25.02.2026
ID zakázky v RK: 414296
Budova je z: Cihla
Stav: Velmi dobrý
Umístění: Velmi dobrý
Plocha pozemku: 697 m2
Užitná plocha: 208 m2
Podlahová plocha: 210 m2
Plocha sklepa: 70 m2
Zastavěná plocha: 108 m2
Energetická náročnost budovy:
E - Nehospodárná
 
 

 

Bleskový dotaz makléři

K prodeji, Rodinný dům, Přední Výtoň

Text dotazu *
Váš telefon *
Váš e-mail
Zobrazit kontaktní informace
Odeslat
 
 
 
 

Ve schránce je 0 inzerátů.

zobrazit celou schránku
 
 

Nalezli jsme dalších 17 nemovitostí v podobné ceně.

 
 
reklama