K prodeji, Rodinný dům, Radějovice

 
 
 
exkluzivně
 
Lokalita:
Radějovice
 
 
Cena:
19 900 000 Kč / za nemovitost
 
Cena domu je uvedena vč. DPH a provize RK.
 
Nabídněte prodejci Vaši cenu 
 
 

Vítejte v Oleškách, kde vznikla dvojice domů, které si na nic nehrají. Čistý design. Promyšlený prostor. Klid. Technologie, které slouží – neobtěžují. Domy, které dýchají – stejně jako vy. ✔️ 218 m² promyšleného prostoru pro život, tvoření i odpočinek. ✔️ 1 003 m² půdy – země, která vám dá kořeny i svobodu. Domy jsou navrženy v energetickém standardu (PENB A) – úsporné, zdravé a dlouhodobě udržitelné. Každý detail zde podporuje principy minimalismu, zdraví a ekologie: ✔️ Rekuperace Zehnder pro čerstvý vzduch a zdravý spánek ✔️ Fotovoltaika Solax s bateriemi a wallboxem pro vlastní energii ✔️ Vytápění a ohřev vody Tepelné čerpadlo Stiebel Eltron ✔️ Chlazení tepelným čerpadlem Stiebel Eltron ✔️ Předokenní žaluzie pro komfort i úsporu Dispozice, která nabízí prostor pro vaši kreativitu A také praktická jistota, že vše potřebné máte k dispozici: ✔️ Vodovod i vlastní vrtaná studna – voda, která proudí i patří vám ✔️ Veřejná kanalizace – čistota a jednoduchost bez starostí ✔️ Plyn v pilíři – energie pro další možnosti ✔️ Optický internet – spojení se světem, i když žijete v klidu Tohle není jen dům. Je to prostor v rovnováze – technologie a ticho, čistota a teplo domova. Cena domu je uvedena vč. DPH. Poslední dům v nabídce. Těšíme se na prohlídku Jaroslav Beránek

 
zobrazit více
 
 
 


Doplňující informace:

ID inzerátu ESO: 4374016
Inzerát vydán: 06.12.2025
Inzerát aktualizován: 19.01.2026
ID zakázky v RK: 18191
Budova je z: Cihla
Stav: Velmi dobrý
Umístění: Velmi dobrý
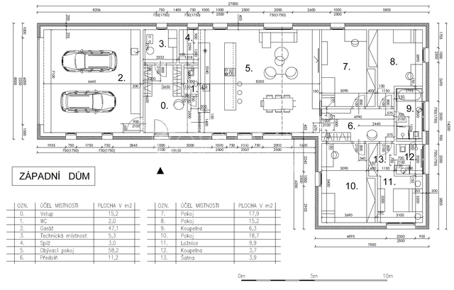
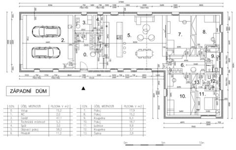
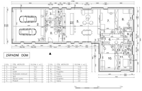
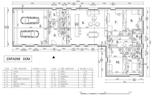
Plocha pozemku: 1003 m2
Užitná plocha: 218 m2
Podlahová plocha: 218 m2
Plocha zahrady: 735 m2
Zastavěná plocha: 268 m2
Energetická náročnost budovy:
A - Mimořádně úsporná
 
 

 

Bleskový dotaz makléři

K prodeji, Rodinný dům, Radějovice

Text dotazu *
Váš telefon *
Váš e-mail
Zobrazit kontaktní informace
Odeslat
 
 
 
 

Ve schránce je 0 inzerátů.

zobrazit celou schránku
 
 

Nalezli jsme dalších 579 nemovitostí v podobné ceně.

 
 
reklama