K prodeji, Rodinný dům, Rynholec, nám. 1. máje

 
 
nový
 
Lokalita:
Rynholec, nám. 1. máje
 
 
Cena:
Info o ceně u RK
 
volejte makléři, včetně provize
 
uvedená cena je: včetně provize Nabídněte prodejci Vaši cenu 
 
 

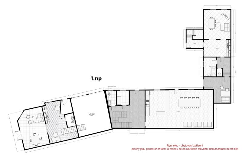
Nabízíme Vám jedinečnou nemovitost v obci Rynholec, okres Rakovník. Jedná se o hospodářskou usedlost, která byla upravena a nyní lze využít jako tří rodinných domů s velkou zahradou. Obec Rynholec se nachází ve Středočeském kraji, v okrese Rakovník. Jedinečná poloha obce, při sjezdu na 25 km z dálnice D6 (Praha - Karlovy Vary) a hranici s CHKO a biosférickou rezervací UNESCO Křivoklátsko, vytváří skvělou kombinaci možnosti pracovat v Praze a zároveň bydlet na venkově s přístupem k úžasné přírodě. Usedlost se skládá ze tří budov, které na sebe stavebně navazují. Jednotlivé budovy, jsou samostatně provozuschopné, a lze je užívat odděleně. První dům má dvě podlaží a malý sklep. V přízemí se nachází plně vybavená kuchyně, jídelna, obývací pokoj s plochou TV, koupelna s vanou, automatickou pračkou a WC. V prvním patře jsou tři pokoje, balkon s výhledem do zahrady, koupelna s rohovou vanou a WC. V Druhém domě se nachází plně vybavená kuchyně s barem, která je volně spojena s prostornou jídelnou (76 m2), gaučem a francouzskými dveřmi do zahrady, WC a koupelna se sprchovým koutem a infrasaunou. V prvním patře jsou tři pokoje, koupelna s rohovou vanou a WC. Ve třetím, nejmenším domě je v přízemí plně vybavená kuchyně, WC a obývací pokoj s francouzskými dveřmi do zahrady. V prvním patře jsou tři pokoje, velká terasa s výhledem do zahrady, koupelna a WC. Mezi prvním a druhým domem se nachází garáž s dvěmi vjezdy o celkové výměře cca 40 m2. Celý jedinečný komplex je oplocený s dobovým vjezdem přes dvoukřídlé dřevěné vrata. Na pozemcích o celkové výměře 3.168 m2 se dále nachází malý rybník a sad. Tato kombinace vytváří dojem malého zámeckého parku. I když nemovitosti nyní slouží k pronájmu, tak je možné je využít i pro bydlení s jedinečnou atmosférou a soukromím.

 
zobrazit více
 
 
 


Doplňující informace:

ID inzerátu ESO: 4401521
Inzerát vydán: 30.04.2026
ID zakázky v RK: 18014
Budova je z: Cihla
Stav: Dobrý
Umístění: Dobrý
Plocha pozemku: 3168 m2
Užitná plocha: 561 m2
Podlahová plocha: 585 m2
Energetická náročnost budovy:
G - Mimořádně nehospodárná
 
 

 

Bleskový dotaz makléři

K prodeji, Rodinný dům, Rynholec, nám. 1. máje

Text dotazu *
Váš telefon *
Váš e-mail
Zobrazit kontaktní informace
Odeslat
 
 
 
 

Ve schránce je 0 inzerátů.

zobrazit celou schránku
 
 

Nalezli jsme dalších 2 nemovitostí v podobné ceně.

 
 
reklama