K prodeji, Rodinný dům, Vladislav

 
 
 
exkluzivně
 
Lokalita:
Vladislav
 
 
Cena:
7 579 000 Kč / za nemovitost
 
 
Nabídněte prodejci Vaši cenu 
 
 

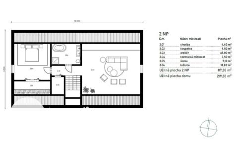
Hledáte klid, prostor a nadstandardní bydlení? Nabízíme jedinečnou příležitost pro náročné zájemce, kteří hledají moderní, prostorné a energeticky úsporné bydlení v krásné venkovské lokalitě. Součástí nabídky je stavební pozemek ve Střížově u Vladislavi a nadstandardně velká dřevostavba 6+kk s užitnou plochou 220 m². Rodinný dům je navržen jako nízkoenergetická dřevostavba z prefabrikovaných rámových stěnových panelů. Jedná se o hrubou stavbu, u které lze individuálně domluvit její dokončení. Dispozice i vzhled domu může stavební firma upravit podle přání klienta. Realizace hrubé stavby je do 4 měsíců Pozemek se nachází v klidné lokalitě 10 km od Třebíče. Ze Střížova jezdí autobus do Vladislavi i Třebíče, ve Vladislavi (3 km) je vlakové spojení do Třebíče, Brna i Náměště nad Oslavou a kompletní občanská vybavenost: škola, školka, lékař, pošta, knihovna i sportovní zázemí. Na pozemku je vodovodní a kanalizační přípojka, elektřinu je nutné vyřídit. Přístup na pozemek je z obou stran - z obecní komunikace i z polní cesty. Pro lepší představu přikládám vizualizaci domu, umístění na pozemku a půdorysy obou podlaží. Pozemek je možné koupit i samostatně. Pro více informací mne neváhejte kontaktovat.

 
zobrazit více
 
 
 


Doplňující informace:

ID inzerátu ESO: 4374255
Inzerát vydán: 08.12.2025
Inzerát aktualizován: 18.03.2026
ID zakázky v RK: 1748
Budova je z: Dřevostavba
Stav: Velmi dobrý
Umístění: Velmi dobrý
Plocha pozemku: 2041 m2
Užitná plocha: 220 m2
 
 

 

Bleskový dotaz makléři

K prodeji, Rodinný dům, Vladislav

Text dotazu *
Váš telefon *
Váš e-mail
Zobrazit kontaktní informace
Odeslat
 
 
 
 

Ve schránce je 0 inzerátů.

zobrazit celou schránku
 
 

Nalezli jsme dalších 19 nemovitostí v podobné ceně.

 
 
reklama