K prodeji, Rodinný dům, Žarošice, Silničná

 
 
 
Lokalita:
Žarošice, Silničná
 
 
Cena:
4 500 000 Kč / za nemovitost
 
 
Nabídněte prodejci Vaši cenu 
 
 

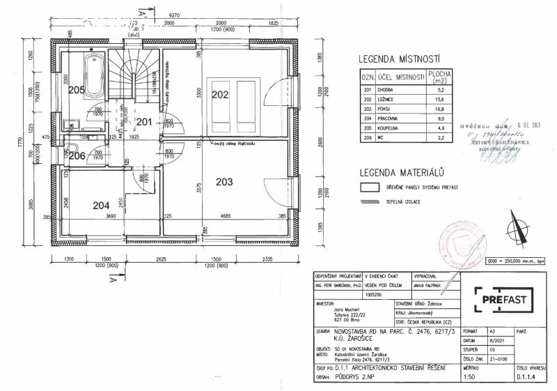
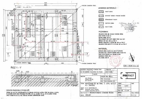
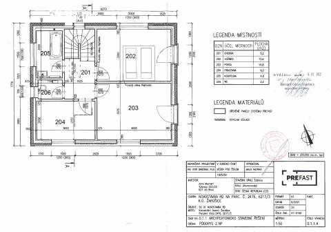
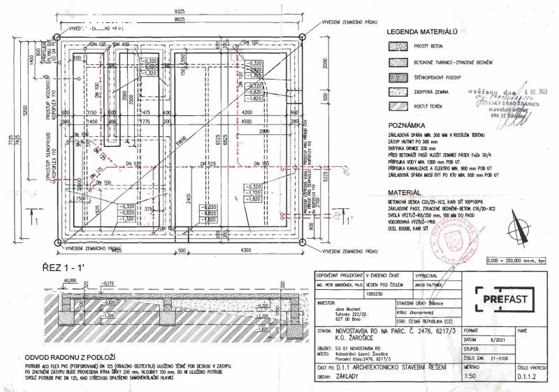
Dovolujeme si Vám nabídnout prodej novostavby rodinného domu v malebné vesničce Silničná nedaleko od obce Žarošice. Z nemovitosti je překrásný výhled do krajiny. Nemovitost se nyní nabízí ve fázi hrubé stavby s možností dokončení na klíč dle přání klienta. Celková výměra domu činní 113,6 m2 - 1.NP - 60,2 m2 - 2.NP - 53,4 m2 Celková výměra pozemků: 437 m2 Objekt je postaven z porobetovnových tvárnic Porfix 250 mm Aktuální rozestavěnost - hrubá stavba 1.NP, vylité stropy a zahájení výstavby 2.NP, v plánu je rovněž realizace střechy. Po dohodě může být provedeno osazení oken, zateplení, vnitřní instalace vody, elektřiny, vzduchotechniky, omítky, podlahy, dveře, atd. Sítě na pozemku: voda, elektřina, Kanalizace: objekt je napojen jímku o objemu 5 m3 a také na retenční nádrž pro dešťovou vodu o objemu 3 m3 Bližší informace rádi poskytneme na zavolání.

 
zobrazit více
 
 
 


Doplňující informace:

ID inzerátu ESO: 4354785
Inzerát vydán: 28.08.2025
Inzerát aktualizován: 01.09.2025
Budova je z: Cihla
Stav: Velmi dobrý
Umístění: Velmi dobrý
Plocha pozemku: 437 m2
Užitná plocha: 114 m2
Energetická náročnost budovy:
G - Mimořádně nehospodárná
 
 

 

Bleskový dotaz makléři

K prodeji, Rodinný dům, Žarošice, Silničná

Text dotazu *
Váš telefon *
Váš e-mail
Zobrazit kontaktní informace
Odeslat
 
 
 
 

Ve schránce je 0 inzerátů.

zobrazit celou schránku
 
 

Nalezli jsme dalších 29 nemovitostí v podobné ceně.

 
 
reklama