K prodeji, Rodinný dům, Žebrák, Na Pěšině

 
 
 
exkluzivně
 
Lokalita:
Žebrák, Na Pěšině
 
 
Cena:
12 500 000 Kč / za nemovitost
 
včetně provize a právních služeb
 
Nabídněte prodejci Vaši cenu 
 
 

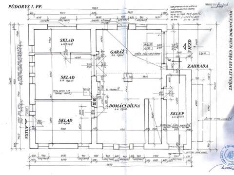
Nabízíme k prodeji nedávno zkolaudovaný dům o dvou samostatných bytových jednotkách v klidné části města Žebrák. Ideální volba pro dvougenerační bydlení, kombinaci vlastního bydlení s investicí nebo pronájem obou bytů. Celková užitná plocha domu je 325 m2. Tato nemovitost má za sebou dlouhý příběh – původní hrubá stavba byla rozestavěna už v roce 1979, ale svého dokončení se dočkala až v roce 2024. Díky pečlivé a důkladné rekonstrukci vznikl moderní dvougenerační dům, který splňuje všechny nároky dnešního bydlení. Nové rozvody, fasáda, střechy i technická zařízení – vše je zcela nové, s oficiální kolaudací a připravené k okamžitému užívání.¨ Dispozice: 1.NP: byt 4+kk/B + koupelna + samostatné WC + komora (užitná plocha 120,72 m²) 2.NP: byt 4+kk + koupelna + samostatné WC + komora (užitná plocha 105,2 m²) PP: technické zázemí, skladové prostory, garáž, dílna, WC (99,45 m²) Technický stav: - Kolaudace říjen 2024 - Kompletní nové rozvody: elektro, voda, odpady, plyn, topení - Příprava na kuchyňské linky, moderní podlahy – vinyl a dlažba - Nová elektro skříň, jističe 3x25A, revize elektřiny a plynu - Nová kanalizační a vodovodní přípojka - Vytápění: plynový kondenzační kotel + akumulační nádrž - Zateplení fasády, stropů i podlah, plastová okna s trojskly včetně střešních, foukaná izolace střechy - Nová střešní krytina Bramac, původní zdravý krov - Napínané stropy v 1.NP Pozemek a okolí: - Celková plocha parcely 713 m² - Kopaná studna s čerpadlem – ideální pro zalévání - Parkování v garáži, na pozemku i před domem - Orientace: JV do ulice, SZ do zahrady Další výhody: - PENB třída D (110 kWh), vytápění třída C - Možnost měsíčního výnosu z pronájmu jednoho bytu min. 20.000 Kč + poplatky Lokalita: Rodinný dům se nachází v klidné rezidenční části města Žebrák, odkud máte na dosah přírodu i městské pohodlí. Samotný Žebrák nabízí kompletní občanskou vybavenost – školu, školku, obchody, restaurace, zdravotní středisko i sportovní zázemí. Jen pár minut jízdy vás dělí od nájezdu na dálnici D5 – do Prahy to zvládnete za 35 minut, do Plzně za půl hodiny. Další služby, včetně nemocnice nebo velkých supermarketů, najdete v nedalekých Hořovicích. Okolí potěší všechny milovníky přírody a aktivního života. Město leží v podhůří Křivoklátských lesů, které jsou chráněnou krajinnou oblastí – ideální pro pěší výlety, cyklistiku i houbaření. Dominantou regionu jsou dva gotické hrady – Točník a Žebrák, které nejen dotvářejí malebnou krajinu, ale jsou i oblíbeným výletním cílem. Možná je právě tohle místo začátkem vašeho nového příběhu. Těšíme se na setkání v Žebráku.

 
zobrazit více
 
 
 


Doplňující informace:

ID inzerátu ESO: 4331041
Inzerát vydán: 06.05.2025
Inzerát aktualizován: 30.01.2026
ID zakázky v RK: 15767
Budova je z: Cihla
Stav: Velmi dobrý
Umístění: Velmi dobrý
Plocha pozemku: 713 m2
Užitná plocha: 325 m2
Podlahová plocha: 325 m2
Plocha sklepa: 99 m2
Zastavěná plocha: 138 m2
Energetická náročnost budovy:
D - Méně úsporná
 
 

 

Bleskový dotaz makléři

K prodeji, Rodinný dům, Žebrák, Na Pěšině

Text dotazu *
Váš telefon *
Váš e-mail
Zobrazit kontaktní informace
Odeslat
 
 
 
 

Ve schránce je 0 inzerátů.

zobrazit celou schránku
 
 

Nalezli jsme dalších 1169 nemovitostí v podobné ceně.

 
 
reklama