K prodeji, Rodinný dům, 152 m2, Úněšov, Vojtěšín

 
 
 
Lokalita:
Úněšov, Vojtěšín
 
 
Cena:
6 690 000 Kč / za nemovitost
 
V případě více zájemců může RK využít pro výběr kupujícího formu aukce.
 
uvedená cena je: včetně provize Nabídněte prodejci Vaši cenu 
 
 

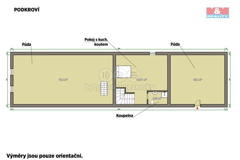
Prostorná bývalá zemědělská usedlost po většinové rekonstrukci, vhodný k okamžitému nastěhování. K němu náleží prostorný pozemek o rozloze cca 1800 m2 (probíhá dělení a přesné vyměřování), který nabízí možnosti pěstování, chovatelství a taktéž relaxace, ke které klid a nádherné prostředí přímo vybízí. Malebný dům se skládá z prostorného obývacího pokoje s kuchyňským koutem, ložnice, dětského pokoje, koupelny, vstupní chodby, a najdeme zde také obytné podkroví. Vše bylo vkusně zrekonstruováno, dům je ze částečně zateplený, nová elektroinstalace, rozvody vody. Krom obytného domu patří k nemovitosti také stodola, dvougaráž, kotelna s dílnou (kotel Atmos + 2x 1000 l akumulační nádrže), dřevník, jež umožňuje další využití. Je zde prostor také na parkování aut. Nemovitost je napojena na vlastní studnu, vlastní ČOV. Místo nadchne klidem a příjemnou atmosférou a také skvělými sousedskými vztahy. Vzdálenost od města Úněšov s veškerou občanskou vybaveností cca 4 km, Plzně ke Globusu 20min autem

 
zobrazit více
 
 
 


Doplňující informace:

ID inzerátu ESO: 4355875
Inzerát vydán: 29.08.2025
Inzerát aktualizován: 30.08.2025
ID zakázky v RK: 900912261
Budova je z: Smíšená
Stav: Velmi dobrý
Vlastnictví: Osobní
Umístění: Velmi dobrý
Poloha objektu: Samostatný
Užitná plocha: 152 m2
Plocha pozemku: 1800 m2
Energetická náročnost budovy:
B - Velmi úsporná
 
 

 

Bleskový dotaz makléři

K prodeji, Rodinný dům, 152 m2, Úněšov, Vojtěšín

Text dotazu *
Váš telefon *
Váš e-mail
Zobrazit kontaktní informace
Odeslat
 
 
 
 

Ve schránce je 0 inzerátů.

zobrazit celou schránku
 
 

Nalezli jsme dalších 35 nemovitostí v podobné ceně.

 
 
reklama