K prodeji, Rodinný dům, 609 m2, Petřvald, Petřvald 2-Petřvaldík

 
 
 
Lokalita:
Petřvald, Petřvald 2-Petřvaldík
 
 
Cena:
3 990 000 Kč / za nemovitost
 
 
uvedená cena je: včetně provize Nabídněte prodejci Vaši cenu 
 
 

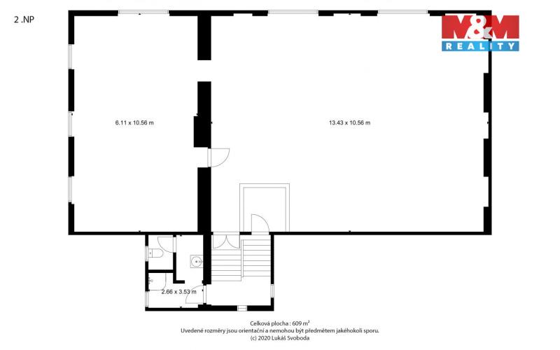
Dobrá cena, dobré místo, dobrý nápad! Nabízíme Vám exkluzivní nemovitost, která je sice zařazená do sekce rodinného domu, ale má viditelný potenciál nájemního domu, bydlení s restaurací či jiným podnikatelským záměrem. Iniciativě se meze nekladou. Budova sloužila dříve jako kulturák s tanečním sálem a místní restaurací, ale je již delší dobu zavřená a nevyužívaná. Nyní čeká na svého nového majitele a šikovného architekta, který ji provede vkusnou rekonstrukcí, vdechne nápad a nový život tak, aby se stala opět pýchou obce. Díky svému velkorysému prostoru, zajímavými proporcemi a stylovými stropy naplní sny nejen o luxusním bydlení. Nachází se rovněž ve strategicky významné lokalitě v blízkosti největšího regionálního letiště v republice a poskytuje rychlé napojení do okolních měst, přičemž stále obklopená přírodou. Doporučuji navštívit naše webové stránky, kde dohledáte kompletní fotogalerii, video i půdorysy. S chutí do toho, půl je hotovo.

 
zobrazit více
 
 
 


Doplňující informace:

ID inzerátu ESO: 4367480
Inzerát vydán: 31.10.2025
Inzerát aktualizován: 03.01.2026
ID zakázky v RK: 900923987
Budova je z: Cihla
Stav: Před rekonstrukcí
Vlastnictví: Osobní
Umístění: Před rekonstrukcí
Poloha objektu: Samostatný
Užitná plocha: 609 m2
Plocha pozemku: 531 m2
Energetická náročnost budovy:
G - Mimořádně nehospodárná
 
 

 

Bleskový dotaz makléři

K prodeji, Rodinný dům, 609 m2, Petřvald, Petřvald 2-Petřvaldík

Text dotazu *
Váš telefon *
Váš e-mail
Zobrazit kontaktní informace
Odeslat
 
 
 
 

Ve schránce je 0 inzerátů.

zobrazit celou schránku
 
 

Nalezli jsme dalších 23 nemovitostí v podobné ceně.

 
 
reklama