K prodeji, Hotely, 273 m2, Ostrava, U Lípy

 
 
 
Lokalita:
Ostrava, U Lípy
 
 
Cena:
13 900 000 Kč / za nemovitost
 
 
uvedená cena je: včetně provize Nabídněte prodejci Vaši cenu 
 
 

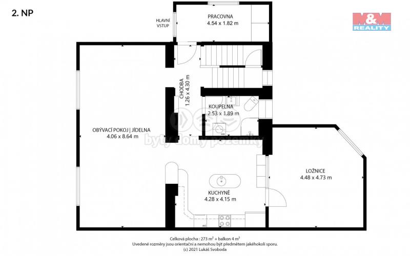
Nabízíme k prodeji velmi unikátní nemovitost, jejíž styl je naprosto autentický a nekopírovatelný. Honosné vícegenerační sídlo, rozprostírající se na třech podlažích dosud sloužilo jako rodinný dům. Možná nastal čas na změnu a využít tuto prodejní příležitost k investici, která následně povede ke krátkodobému pronájmu s výnosem zajímavých částek. Součástí komplexu je wellness s celoročním vyhřívaným bazénem (solární panely), saunou, společenskou místností a dobře vybaveným barem. Na famózní zahradě se krom dostatku soukromí i prostoru pro venkovní aktivity nachází také masivní krb, altánek, zastřešené technické zázemí, které lze využít i jinak, stylová garáž, zastřešené stání a mnoho další parády. Celý pozemek je oplocen. Na přilehlém dvorku je kvalitní a udržovanou zámková dlažba, kde také najdete kryté stání.

 
zobrazit více
 
 
 


Doplňující informace:

ID inzerátu ESO: 4353042
Inzerát vydán: 20.08.2025
Inzerát aktualizován: 01.09.2025
ID zakázky v RK: 900917161
Budova je z: Cihla
Stav: Po rekonstrukci
Vlastnictví: Osobní
Umístění: Po rekonstrukci
Nebytová plocha: 273 m2
Plocha pozemku: 1248 m2
Parkování: Garáž
Užitná plocha: 273 m2
Energetická náročnost budovy:
G - Mimořádně nehospodárná
 
 

 

Bleskový dotaz makléři

K prodeji, Hotely, 273 m2, Ostrava, U Lípy

Text dotazu *
Váš telefon *
Váš e-mail
Zobrazit kontaktní informace
Odeslat
 
 
 
 

Ve schránce je 0 inzerátů.

zobrazit celou schránku
 
 

Nalezli jsme dalších 10 nemovitostí v podobné ceně.

 
 
reklama