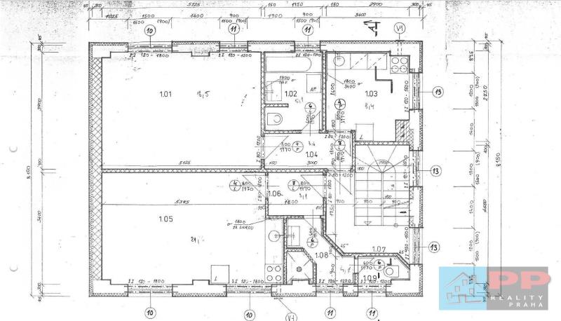
ID: P030401. Nabízíme k prodeji budovu, doposud využívanou jako společenské a přednáškové centrum s kapacitou pro 120 - 140 lidí. V přízemí budovy se nachází přednáškový sál se sociálním zázemím, šatnou, kotelnou a skladem. V patře se nachází dvě bytové jednotky se sociálním zařízením. Objekt po celou dobu užívání byl dobře a pečlivě udržován, je napojen na veřejný vodovod, kanalizaci, plyn a elektřinu. V případě zájmu o prohlídku nás prosím kontaktujte
Tel: 603 264 618 plachuta@vpreality.cz
Petrohradská 216/3, 10100 Praha www.vpreality.cz
Ve schránce je 0 inzerátů.
K prodeji, Ubytování Toužim
K prodeji, Obchody Abertamy, Jáchymovská
K prodeji, Hotely, 230 m2 Horní Blatná, Vančurova
K prodeji, Výroba, 150 m2 Nejdek, Bernov
K prodeji, Kanceláře Karlovy Vary, U Trati
K prodeji, Kanceláře, 72 m2 Karlovy Vary, Zámecký vrch