K prodeji, Jiné komer. prostory, Olomouc, Heydukova

 
 
 
exkluzivně
 
Lokalita:
Olomouc, Heydukova
 
 
Cena:
19 500 000 Kč / za nemovitost
 
včetně právních služeb, včetně provize RK
 
Nabídněte prodejci Vaši cenu 
 
 

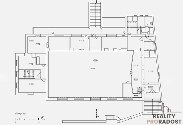
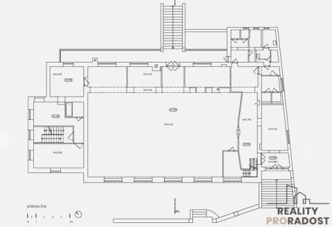
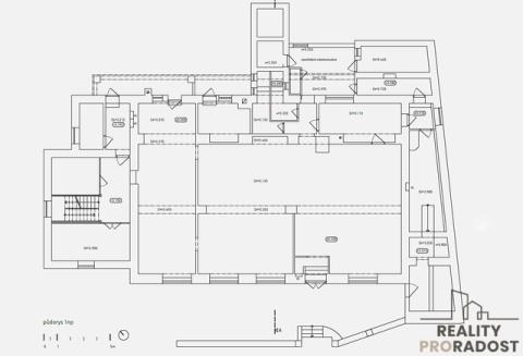
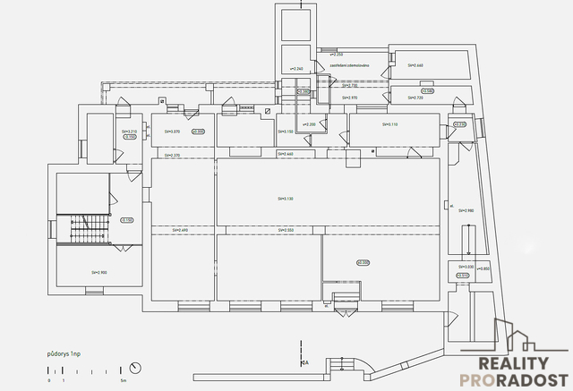
Nabízíme k prodeji unikátní nemovitost s bohatou historií – víceúčelový objekt známý jako Dělnický dům, situovaný v atraktivní a dobře dostupné části města Olomouc - Černovír. Jedná se o historický objekt s výrazným architektonickým charakterem a širokým potenciálem dalšího využití – kulturní, administrativní, obchodní i jiné. Budovu postavila Dělnická tělocvičná jednota v roce 1934. V minulosti sloužila jako kulturní a společenské centrum s tělocvičnou (sálem) a hostincem v přízemí. V prostorném kulturním sále se štukovou výzdobou vystupovali přední umělci československého undergroundu, jako olomoucký rodák Karel Plíhal, Jaroslav Chromek, Psí vojáci a další. Dispozičně nabízí v 1.NP užitnou plochu cca 363 m2 - velký otevřený prostor se zázemím, v 2.NP užitnou plochu cca 363 m2 - prostorný sál (cca 250 m2) se zázemím, v 3.NP. užitnou plochu cca 80 m2, dále půdu – cca 200 m2. Celkem cca 1.000 m2 užitné plochy na pozemku o celkové ploše 1.830 m2. Vzhledem k velikosti, umístění a dispozičnímu řešení je objekt (po rekonstrukci) vhodný pro kulturní instituce, školská zařízení, kancelářské využití, povozovny a jiné. Dle platného územního plánu lze pozemky využít jako plochy veřejného vybavení. Výhody: • Zajímavá budova s historickým kontextem • Strategická poloha s výbornou dostupností • Velkorysé vnitřní prostory s původními prvky • Možnost víceúčelového využití • Vlastní pozemek • Potenciál pro dotace na rekonstrukci Objekt čeká na nového majitele, který mu vrátí jeho zašlou slávu.

 
zobrazit více
 
 
 


Doplňující informace:

ID inzerátu ESO: 4329512
Inzerát vydán: 01.05.2025
Inzerát aktualizován: 18.09.2025
ID zakázky v RK: 26268
Budova je z: Cihla
Stav: Před rekonstrukcí
Umístění: Před rekonstrukcí
Užitná plocha: 1000 m2
Zastavěná plocha: 445 m2
Energetická náročnost budovy:
G - Mimořádně nehospodárná
 
 

 

Bleskový dotaz makléři

K prodeji, Jiné komer. prostory, Olomouc, Heydukova

Text dotazu *
Váš telefon *
Váš e-mail
Zobrazit kontaktní informace
Odeslat
 
 
 
 

Ve schránce je 0 inzerátů.

zobrazit celou schránku
 
 

Nalezli jsme dalších 1 nemovitostí v podobné ceně.

 
 
reklama