K prodeji, Novostavba: Obchody, 126 m2, Praha 6, U Petřin

 
 
nový
 
Lokalita:
Praha 6, U Petřin
 
 
Cena:
12 850 000 Kč / za nemovitost
 
 
uvedená cena je: včetně provize Nabídněte prodejci Vaši cenu 
 
 

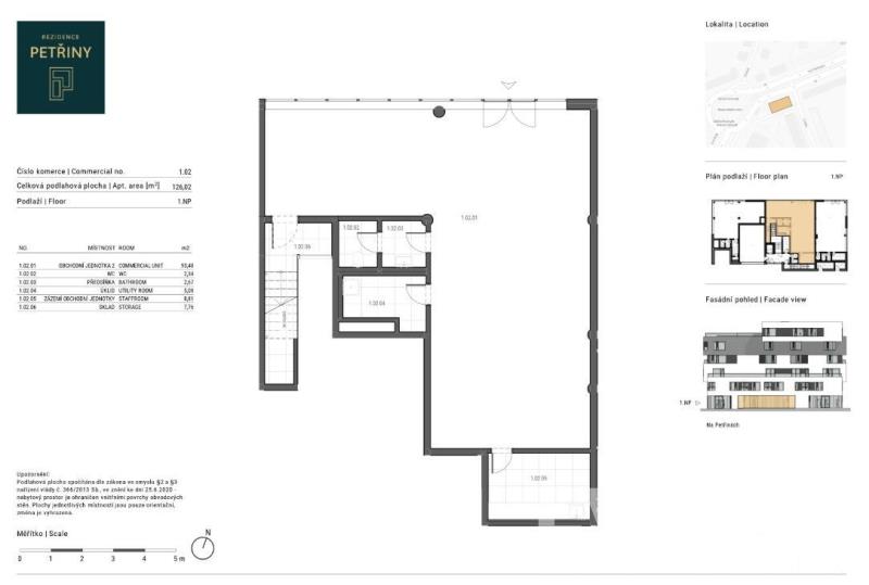
Dovolujeme si Vám nabídnout komerční prostor o velikosti 126,02 m2 z developerského projektu Rezidence Petřiny na Praze 6. Projekt obsahuje 26 prémiových bytů v osobním vlastnictví v těsné blízkosti metra Petřiny a Obory Hvězda. Byty mají podlahové vytápění, dřevěné podlahy, klimatizaci, chytrou domácnost, venkovní žaluzie či je na výběr z luxusních materiálů. Bytový dům má dispozice bytů od menších 1+kk po příjemných 4+kk. Každý byt je jiný a něčím specifický. Ať už je to výhled, dispozice či velkorysá terasa. Dispozice komerčního prostoru s označením 1.02. Komerční prostor se nachází v 1.NP. Disp.: obchodní jednotka 93,48 m2, WC 2,34 m2, předsíňka 2,67 m2, úklid 5,08 m2, zázemí obchodní jednotky 8,81 m2, sklad 7,76 m2. Celková plocha: 126,02 m2. Lokalita: Město: Už několik let jsou pražské Petřiny vyhledávanou městskou čtvrtí. Je to dáno, polohou, klidem i vybaveností. Jedním z nejpodstatnějších benefitů je dopravní dostupnost. Stanice metra trasy A Petřiny umožňuje rychlé přesuny napříč celé metropole. Autem pár minut na letiště, nákupní centrum Zličín, pražský okruh nebo Smíchovskou náplavku nebo na kole za sportem do blízkého parku Ladronka. Petřiny jsou dnes moderní část Prahy spojující v sobě klid, pohodu a životní styl. Příroda: Rezidence Petřiny má přírodu doslova na dosah. Stačí pět minut procházkovým tempem a jste v oboře letohrádku Hvězda. Inline bruslení, jogging nebo volleyball naleznete v nedalekém parku Ladronka a nejhezčí scenérie máte na dosah v chráněné oblasti Divoká Šárka s vodní nádraží Džbán. Budu se těšit na prohlídku s Vámi.

 
zobrazit více
 
 
 


Doplňující informace:

ID inzerátu ESO: 4391700
Inzerát vydán: 19.03.2026
ID zakázky v RK: 7172240
Budova je z: Skelet
Stav: Nerozhoduje
Vlastnictví: Osobní
Umístění: Nerozhoduje
Nebytová plocha: 126 m2
Plyn: Není
Voda: Vodovod
Vytápění: Jiné
Parkování: Garáž
Užitná plocha: 126 m2
Zastavěná plocha: 548 m2
Energetická náročnost budovy:
C - Úsporná
 
 

 
 
 

Bleskový dotaz makléři

K prodeji, Novostavba: Obchody, 126 m2, Praha 6, U Petřin

Text dotazu *
Váš telefon *
Váš e-mail
Zobrazit kontaktní informace
Odeslat
 
 
 
 

Ve schránce je 0 inzerátů.

zobrazit celou schránku
 
 
reklama