K prodeji, Obchody, 286 m2, Kolín, Havlíčkova

 
 
 
exkluzivně
 
Lokalita:
Kolín, Havlíčkova
 
 
Cena:
14 500 000 Kč / za nemovitost
 
 
uvedená cena je: včetně provize Nabídněte prodejci Vaši cenu 
 
 

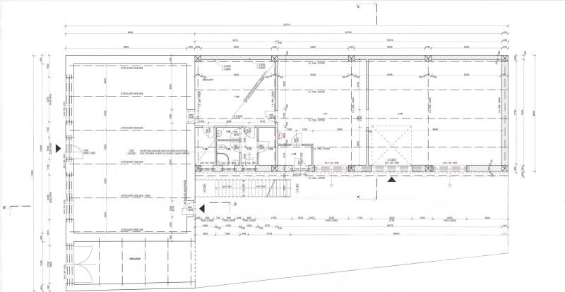
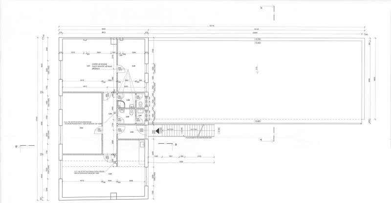
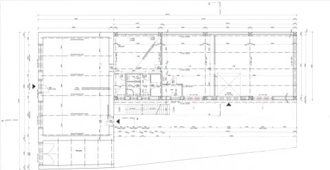
PRODÁNO Ve výhradním zastoupení majitele Vám nabízíme k prodeji obchodní a výrobní prostory v dvoupatrovém objektu, tj. možnosti prodejny/skladu/kanceláří, v ulici Havlíčkova v Kolíně. Objekt má 2 nadzemní podlaží, kdy každé má samostatný vchod ze dvora, kde je vyhrazeno parkování pro až 6 aut. Do dvora vede vjezd přímo z hlavní ulice Havlíčkova. Přízemí objektu (286 m²): Prodejna (105 m²), skládek (29 m²), příslušenství (20 m²), sklad (132 m²). Vstup z ulice i ze dvora. 1. patro (143 m²): Pokoj/kancelář (49 m²), pokoj/kancelář (27 m²), pokoj/kancelář (39 m²), zázemí (18 m²), chodba (10 m²). Vstup ze dvora. Průjezd + dvůr (100 m²). Prostor je vytápěn plynem (2× kotel), disponuje EZS a LED svítidly. Volné ihned. Objekt se nachází necelých 500 metrů od nádraží v Kolíně, 15 kilometrů od nájezdu na dálnici D11 a cca 50 kilometrů od Prahy. Vzhledem ke skutečnosti, že zatím není zpracován PENB štítek, uvádíme energetickou náročnost budovy písmenem G. Pro více informací kontaktujte makléře.

 
zobrazit více
 
 
 


Doplňující informace:

ID inzerátu ESO: 4313765
Inzerát vydán: 24.02.2025
Inzerát aktualizován: 27.01.2026
ID zakázky v RK: 7130150
Budova je z: Cihla
Stav: Dobrý
Umístění: Dobrý
Nebytová plocha: 286 m2
Parkování: Venkovní stání
Užitná plocha: 429 m2
Zastavěná plocha: 363 m2
Energetická náročnost budovy:
G - Mimořádně nehospodárná
 
 

 

Bleskový dotaz makléři

K prodeji, Obchody, 286 m2, Kolín, Havlíčkova

Text dotazu *
Váš telefon *
Váš e-mail
Zobrazit kontaktní informace
Odeslat
 
 
 
 

Ve schránce je 0 inzerátů.

zobrazit celou schránku
 
 

Nalezli jsme dalších 1 nemovitostí v podobné ceně.

 
 
reklama