K prodeji, Restaurace, Hostivice, Čsl. armády

 
 
 
exkluzivně
 
Lokalita:
Hostivice, Čsl. armády
 
 
Cena:
6 950 000 Kč / za nemovitost
 
 
Nabídněte prodejci Vaši cenu 
 
 

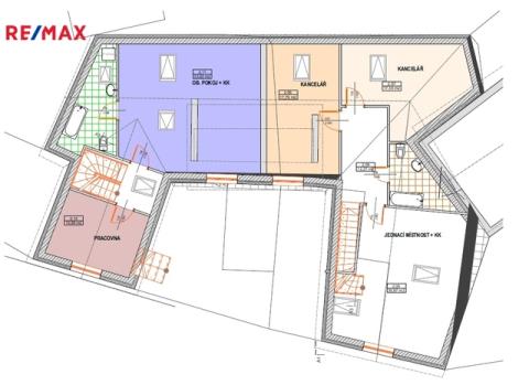
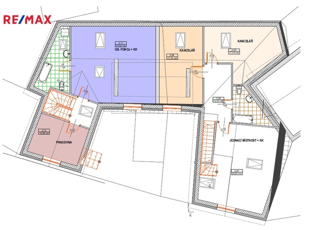
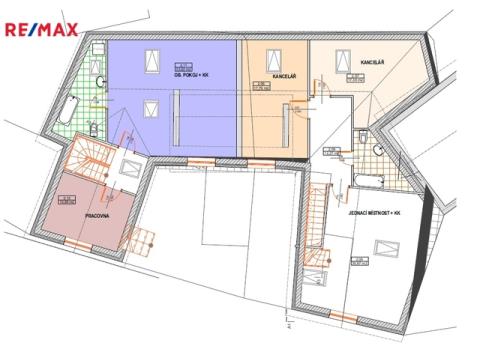
Exkluzivně nabízíme k prodeji kompletně zrekonstruované a plně vybavené bistro v Hostivici. Objekt o užitné ploše 70 m2 je zkolaudován jako gastro provoz a je připraven k okamžitému užívání. Součástí jsou: - nerezová kuchyně - přípravna a sklad potravin - denní místnost pro zaměstnance - technické zázemí Bistro je vybaveno vzduchotechnikou, klimatizací, hliníkovými vstupy a plynovým ústředním vytápěním. Ohřev vody zajišťuje plynový kotel. Vytápění v celém objektu je podlahové. K bistru náleží dvorek, zčásti zastřešený pergolou, vhodný pro letní posezení nebo další rozšíření provozu. V podzemní části dvorku je velký sklepní prostor 10 m2 s vytápěním. K dispozici jsou plány k možné půdní vestavbě, která by mohla významně zvýšit jeho užitnou plochu a hodnotu. Vynikající poloha v blízkosti centra a vlakového nádraží (500 m) a v žádané lokalitě s plnou občanskou vybaveností v pěší dostupnosti a výbornou dostupností do Prahy (nájezd na D6 a pražský okruh u obce). V ceně je zahrnuto veškeré gastro vybavení a nábytek. Možno zakoupit samostatně nebo s vedlejším rodinným domem – při koupi obou objektů bude nabídnuta významná sleva. Prohlídky jsou možné po předchozí telefonické domluvě a rezervaci přesné hodiny. Pozn.: Rozměry ploch jsou orientační.

 
zobrazit více
 
 
 


Doplňující informace:

ID inzerátu ESO: 4348003
Inzerát vydán: 24.07.2025
Inzerát aktualizován: 19.01.2026
ID zakázky v RK: 419565
Budova je z: Cihla
Stav: Po rekonstrukci
Umístění: Po rekonstrukci
Užitná plocha: 70 m2
Plocha pozemku: 112 m2
Zastavěná plocha: 83 m2
Energetická náročnost budovy:
G - Mimořádně nehospodárná
 
 

 

Bleskový dotaz makléři

K prodeji, Restaurace, Hostivice, Čsl. armády

Text dotazu *
Váš telefon *
Váš e-mail
Zobrazit kontaktní informace
Odeslat
 
 
 
 

Ve schránce je 0 inzerátů.

zobrazit celou schránku
 
 

Nalezli jsme dalších 1 nemovitostí v podobné ceně.

 
 
reklama