K prodeji, Sklady, 1016 m2, Ostrava, Karla Líby

 
 
 
Lokalita:
Ostrava, Karla Líby
 
 
Cena:
Info o ceně u RK
 
info v RK
 
uvedená cena je: včetně provize Nabídněte prodejci Vaši cenu 
 
 

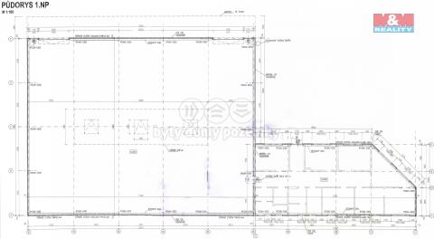
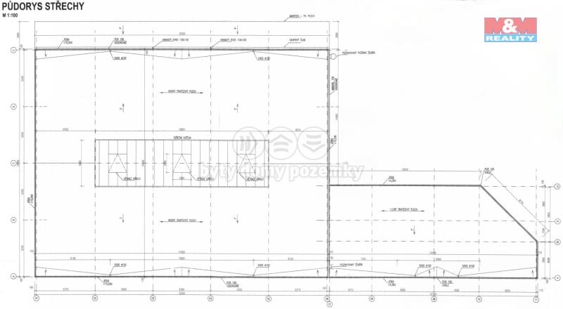
Nabízíme k prodeji moderní halu s administrativní budovou v Ostravě - Přívoze v blízkosti centra města s jedinečnou dopravní dostupností (sjezd D1). Stáří haly 7 let, použity moderní a kvalitní materiály (Kingspan, Mapei), nízké provozní náklady (B - velmi úsporná). Celková výměra pozemků činí 2.218 m2, zastavěná plocha haly 800 m2 (32 x 25 m), zastavěná plocha administrativní budovy 216 m2. Celý areál je oplocen, vjezd přes elektricky ovládané posuvné brány. Objekt je vybaven zabezpečovacím a kamerovým systémem připojeným na PCO, administrativní budova vytápěna tepelným čerpadlem a klimatizována. Parametry provozních ploch poskytují možnost přístupu kamionové dopravě pro nakládku a vykládku a dostatečné množství parkovacích míst. Světlá výška haly 9,77 m, 2x vrata o rozměrech 4,2 x 4,2 m. Administrativní budova - 5 kanceláří, zasedací místnost, toalety, šatny, kuchyň. Podrobné informace k dispozici u makléře.

 
zobrazit více
 
 
 


Doplňující informace:

ID inzerátu ESO: 4341671
Inzerát vydán: 24.06.2025
Inzerát aktualizován: 10.07.2025
ID zakázky v RK: 900912201
Budova je z: Montovaná
Stav: Velmi dobrý
Vlastnictví: Osobní
Umístění: Velmi dobrý
Nebytová plocha: 1016 m2
Plocha pozemku: 2218 m2
Užitná plocha: 1016 m2
Energetická náročnost budovy:
B - Velmi úsporná
 
 

 

Bleskový dotaz makléři

K prodeji, Sklady, 1016 m2, Ostrava, Karla Líby

Text dotazu *
Váš telefon *
Váš e-mail
Zobrazit kontaktní informace
Odeslat
 
 
 
 

Ve schránce je 0 inzerátů.

zobrazit celou schránku
 
 

Nalezli jsme dalších 9 nemovitostí v podobné ceně.

 
 
reklama