K prodeji, pozemky - stavební / bydlení, 1191 m2, Lochenice

 
 
 
Lokalita:
Lochenice
 
 
Cena:
6 490 000 Kč / za nemovitost
 
cena včetně služeb RK
 
Nabídněte prodejci Vaši cenu 
 
 

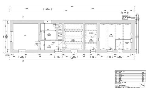
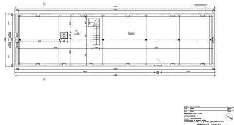
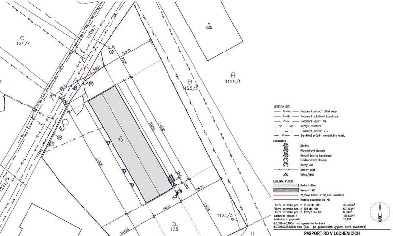
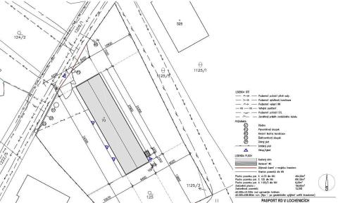
Dobrý den, hledáte větší pozemek pro projekt svého rodinného domu nebo hledáte investiční nemovitost, ze které můžete vytvořit projekt domu o 3 bytech s předzahrádkami a vlastním parkováním? Pokud umíte najít a vytěžit potenciál u nemovitosti, mohla by Vás zaujmout tato naše nová nabídka. Jedná se o prodej pozemku o celkové výměře 1.191 m2, který se nachází v klidné části obce Lochenice, 15 minut jízdy autem od centra Hradce Králové. Na pozemku je postaven rodinný dům, který je určen k demolici, případně celkové rekonstrukci. Jeho zastavěná plocha činí 156 m2. Byl postaven pravděpodobně již v 19. století a od té doby došlo k přístavbám jihovýchodním směrem, ale dům je již od poloviny 20. století bez výraznějším změn. IS: elektřina zavedena, předpřipravená kanalizační přípojka, předpřipravená plynová přípojka. Na pozemku se nachází vlastní studna. V územním plánu je celý pozemek zahrnut do území smíšeného obytného. A jak bylo uvedeno výše, nabídka je vhodná pro zájemce, který umí najít a vytěžit potenciál daného místa nebo stavby. Stávající půdorys domu je vhodný pro vybudování domu o 3 bytech, každý s vlastním parkováním a menší zahradou. Děkuji za pozornost a budu se těšit na komunikaci s Vámi. Václav Růžička, realitní specialista. Prodávající si vyhrazuje právo na výběr kupujícího dle vlastní úvahy (způsob úhrady kupní ceny, serióznost jednání apod.).

 
zobrazit více
 
 
 


Doplňující informace:

ID inzerátu ESO: 4354109
Inzerát vydán: 22.08.2025
Inzerát aktualizován: 06.11.2025
ID zakázky v RK: 0
Plocha: 1191 m2
Plocha pozemku: 1191 m2
 
 

 

Bleskový dotaz makléři

K prodeji, pozemky - stavební / bydlení, 1191 m2, Lochenice

Text dotazu *
Váš telefon *
Váš e-mail
Zobrazit kontaktní informace
Odeslat
 
 
 
 

Ve schránce je 0 inzerátů.

zobrazit celou schránku
 
 

Nalezli jsme dalších 5 nemovitostí v podobné ceně.

 
 
reklama