K prodeji, pozemky - stavební / bydlení, 3186 m2, Vavřinec

 
 
 
exkluzivně
nový
 
Lokalita:
Vavřinec
 
 
Cena:
6 590 000 Kč / za nemovitost
 
 
Nabídněte prodejci Vaši cenu 
 
 

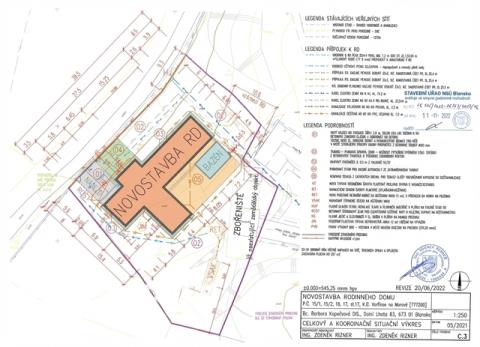
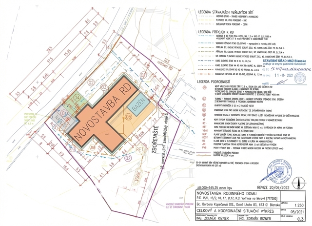
Nabízíme Vám k prodeji stavební pozemek s projektovou dokumentací a pravomocným stavebním povolením na rodinný dům – přístup z obou stran – 3 186 m² – obec Vavřinec (Moravský kras) Nabízíme k prodeji krásný a rozlehlý stavební pozemek o celkové ploše 3 186 m² v obci Vavřinec v srdci Moravského krasu, ideální pro výstavbu rodinného domu, případně i více domů či řadových domů. K pozemku je vypracovaný stavební projekt s PLATNÝM PRAVOMOCNÝM stavebním povolením na rodinný dům. Pozemek je přístupný z obou stran – z přední i ze zadní části, což nabízí výborné možnosti napojení a uspořádání stavby. Lokalita poskytuje klidné a přírodní prostředí v chráněné krajinné oblasti, zároveň s dobrým dopravním spojením. Lokalita – obec Vavřinec Obec Vavřinec leží v okrese Blansko v Jihomoravském kraji, cca 40 km severně od města Brno. Nedaleko od obce se nachází mimo jiné rozhledna Podvrší a zřícenina hradu Blansek, v krásném přírodním prostředí Moravského krasu. Výhody dostupnosti Vzdálenost do Brna cca 40 km, do Blanska cca 10km a do Boskovic cca 16km. Výborné spojení i do dalších obcí Moravského krasu, jako je Sloup či okolní spádové obce. Obec spadá pod město Blansko pro širokou nabídku služeb. Tato nabídka představuje velmi zajímavou možnost – rozlehlý stavební pozemek o 3 186 m² v atraktivní přírodní lokalitě Moravského krasu, s platným projektem a stavebním povolením, přístupem z obou stran a výbornou dostupností do Brna i okolních obcí. Pokud Vás nabídka zaujala, neváhejte mě kdykoli kontaktovat.

 
zobrazit více
 
 
 


Doplňující informace:

ID inzerátu ESO: 4374566
Inzerát vydán: 10.12.2025
Inzerát aktualizován: 11.12.2025
ID zakázky v RK: 1667
Plocha: 3186 m2
Plocha pozemku: 3186 m2
 
 

 

Bleskový dotaz makléři

K prodeji, pozemky - stavební / bydlení, 3186 m2, Vavřinec

Text dotazu *
Váš telefon *
Váš e-mail
Zobrazit kontaktní informace
Odeslat
 
 
 
 

Ve schránce je 0 inzerátů.

zobrazit celou schránku
 
 

Nalezli jsme dalších 8 nemovitostí v podobné ceně.

 
 
reklama