K prodeji, pozemky - stavební / bydlení, 615 m2, Kamenice, Višňovka I

 
 
 
exkluzivně
 
Lokalita:
Kamenice, Višňovka I
 
 
Cena:
4 790 000 Kč / za nemovitost
 
 
Nabídněte prodejci Vaši cenu 
 
 

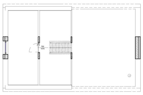
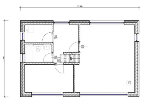
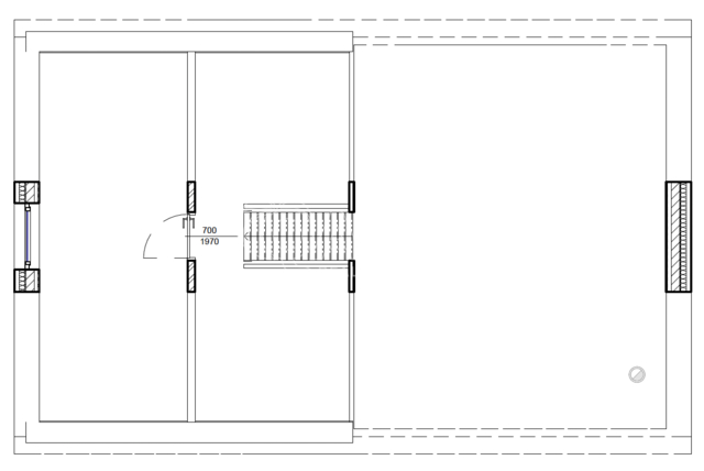
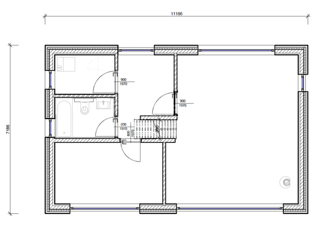
Hledáte pozemek umístěný v klidné části s výhledem, s inženýrskými sítěmi a chcete začít hned stavět? Pak je pro vás ideální pozemek v Kamenici - Těptíně, který vše výše uvedené splňuje. Aktuální vlastník zde nechal vypracovat stavební povolení na kompletní přestavbu chaty a to na dům vhodný k bydlení. Dům si můžete nechat postavit od firmy, která projekt zpracovala, nebo jakoukoliv jinou cestou, majitelé vše ostatní připravili, stavbu můžete zahájit prakticky ihned. Náklad pro stavbu na klíč činí dle rozpočtu 4,5 mio Kč. Navržená stavba je moderním rekreačním domem, který však může sloužit i pro trvalé bydlení. Dům o zastavěné ploše 80m2, funkční uspořádání odpovídá velkorysé dispozici 3+kk. Dům se rozkládá do dvou podlaží, část přízemí je otevřena až do krovu. Rád Vám poskytnu projektovou dokumentaci a podklady ke stavebnímu povolení. Výsledná stavba lze upravit formou změny stavby před dokončením, nebo postavit dům úplně odlišný. Elektrická energie je zavedena do stávajícího objektu, vodovod a kanalizace je v příjezdové obecní komunikaci, je možné se jednoduše připojit. Nad rámec toho je na pozemku studna, vhodná třeba na zalévání, nebo jako voda do bazénu. Díky odlišné výšce okolních pozemků je zde příjemné soukromí. Na pozemku již proběhly nákladné terénní úpravy, tím vznikl dostatek místa pro realizaci stavby. Pozemek se nachází v lokalitě na okraji Těptína, která dříve sloužila pro rekreaci, v dnešní době se transformuje na plochu pro trvalé bydlení. V galerii také naleznete náhled půdorysu a 3D vizualizace od firmy Prefast, která vytvořila stavbu na klíč dle požadavků územního plánu. Celková cena této stavby vč. DPH činí 4 465 440,- Kč. V Těptíně najdete soukromou základní školu, potraviny. Širší vybavenost je pak v nedaleké Kamenici, několik supermarketů, státní základní škola, restaurace. Spojení do Prahy zajišťuje autobus - 45 minut. Okolní lesy jsou skvělé pro toulky přírodou, výlety na kole, nebo cokoliv dalšího, co vás napadne.

 
zobrazit více
 
 
 


Doplňující informace:

ID inzerátu ESO: 4280257
Inzerát vydán: 24.09.2024
Inzerát aktualizován: 23.11.2025
ID zakázky v RK: 13465
Plocha: 615 m2
Plocha pozemku: 615 m2
 
 

 

Bleskový dotaz makléři

K prodeji, pozemky - stavební / bydlení, 615 m2, Kamenice, Višňovka I

Text dotazu *
Váš telefon *
Váš e-mail
Zobrazit kontaktní informace
Odeslat
 
 
 
 

Ve schránce je 0 inzerátů.

zobrazit celou schránku
 
 

Nalezli jsme dalších 18 nemovitostí v podobné ceně.

 
 
reklama