K prodeji, pozemky - stavební / bydlení, 71031 m2, Dolní Řasnice

 
 
 
Lokalita:
Dolní Řasnice
 
 
Cena:
Info o ceně u RK
 
info v RK
 
Nabídněte prodejci Vaši cenu 
 
 

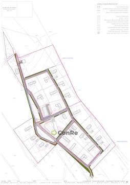
Nabízím Vám ke koupi pozemky pro výstavbu rodinných domů o celkové výměře 71 031 m2 v obci Dolní Řasnici s vypracovaným developerským projektem. Návr řeší zástavbu 40 ti RD vesnického charakteru.Více informací na: chaletyrasnice.cz Vhodná investiční příležitost

 
zobrazit více
 
 
 


Doplňující informace:

ID inzerátu ESO: 4043127
Inzerát vydán: 05.05.2022
Inzerát aktualizován: 06.03.2026
Plocha: 71031 m2
Plocha pozemku: 71031 m2
 
 

 

Bleskový dotaz makléři

K prodeji, pozemky - stavební / bydlení, 71031 m2, Dolní Řasnice

Text dotazu *
Váš telefon *
Váš e-mail
Zobrazit kontaktní informace
Odeslat
 
 
 
 

Ve schránce je 0 inzerátů.

zobrazit celou schránku
 
 

Nalezli jsme dalších 2 nemovitostí v podobné ceně.

 
 
reklama