K prodeji, pozemky - stavební / komerční, Březová, Rudolec

 
 
 
Lokalita:
Březová, Rudolec
 
 
Cena:
2 164 300 Kč / za nemovitost
 
 
uvedená cena je: včetně provize Nabídněte prodejci Vaši cenu 
 
 

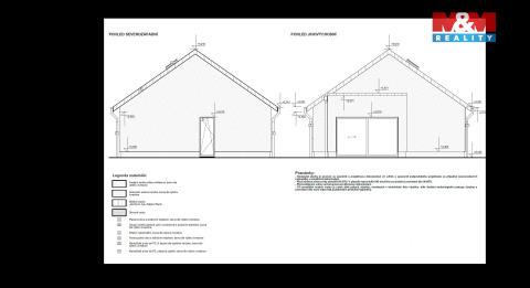
Není na co čekat, už jen pár pozemků k mání. Zasíťované pozemky- elektřina 3x32A, voda, kanalizace, příjezdová komunikace. Investice nebo Vaše vlastní bydlení. Kdy začnete stavět je jen na Vás, není časově omezeno. Tento stavební pozemek o rozloze 941 m², nacházející se v katastrálním území Rudolec u Březové, Vám může splnit sen o pohodovém bydlení. Nabízí dostatek soukromí, přímý kontakt s přírodou a zároveň skvělou dostupnost do okolních měst, jako jsou Sokolov, Karlovy Vary či Cheb. Součástí ceny pozemku je projekt rodinného domu s vydaným pravomocným stavebním povolením. V rámci tohoto povolení je možné upravit či zvětšit dispozici domu podle vašich představ. Pokud hledáte klidné a příjemné místo k životu, tento pozemek je skvělou volbou! Neváhejte nás kontaktovat pro více informací nebo domluvení prohlídky

 
zobrazit více
 
 
 


Doplňující informace:

ID inzerátu ESO: 4369539
Inzerát vydán: 12.11.2025
ID zakázky v RK: 900925258
Stav: Velmi dobrý
Vlastnictví: Osobní
Umístění: Velmi dobrý
Plocha pozemku: 941 m2
Energetická náročnost budovy:
G - Mimořádně nehospodárná
 
 

 

Bleskový dotaz makléři

K prodeji, pozemky - stavební / komerční, Březová, Rudolec

Text dotazu *
Váš telefon *
Váš e-mail
Zobrazit kontaktní informace
Odeslat
 
 
 
 

Ve schránce je 0 inzerátů.

zobrazit celou schránku
 
 

Nalezli jsme dalších 14 nemovitostí v podobné ceně.

 
 
reklama