K pronájmu, Byt 1+1, 35 m2, Olomouc, I. P. Pavlova

 
 
 
exkluzivně
nový
 
Lokalita:
Olomouc, I. P. Pavlova
 
 
Cena:
11 500 Kč / za nemovitost
 
 
Nabídněte prodejci Vaši cenu 
 
 

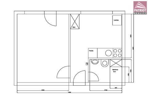
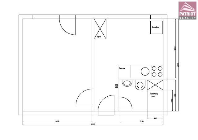
Nabízíme pronájem velmi příjemného světlého bytu o dispozici 1+1 na ulici I. P. Pavlova v bezprostřední blízkosti Fakultní Nemocnice Olomouc. Celková výměra bytu je 35 m2 + lodžie. Byt se nachází v 1NP panelového domu a je po kompletní revitalizaci - nová plastová okna se žaluziemi, nová elektroinstalace vč. doplnění omezovačů přepětí, zděné koupelnové jádro se sprchovým koutem, vestavěná kuchyňská linka vč. trouby + plynové desky a digestoře, nové vnitřní dveře, nové podlahové krytiny. Byt je vhodný pro 1 – 2 osoby, vítáni jsou nekuřáci a klienti bez domácích mazlíčků. Vyhledávaná klidná lokalita v dosahu MHD, fakultní nemocnice, nákupního centra, apod. Cena nájmu uvedena bez záloh na služby, které činí 2.451 ,- Kč + el. + plyn pouze na vaření. Volné od 1.4. Doporučujeme osobní prohlídku.

 
zobrazit více
 
 
 


Doplňující informace:

ID inzerátu ESO: 4387753
Inzerát vydán: 02.03.2026
ID zakázky v RK: 0221
Budova je z: Panel
Stav: Velmi dobrý
Vlastnictví: Osobní
Umístění: Velmi dobrý
Obytná plocha: 35 m2
Užitná plocha: 35 m2
Podlahová plocha: 35 m2
Energetická náročnost budovy:
G - Mimořádně nehospodárná
 
 

 
 
 

Bleskový dotaz makléři

K pronájmu, Byt 1+1, 35 m2, Olomouc, I. P. Pavlova

Text dotazu *
Váš telefon *
Váš e-mail
Zobrazit kontaktní informace
Odeslat
 
 
 
 

Ve schránce je 0 inzerátů.

zobrazit celou schránku
 
 

Nalezli jsme dalších 66 nemovitostí v podobné ceně.

 
 
reklama