K pronájmu, Byt 1+kk, Praha 4, Praha 12, Pleštilova

 
 
 
Lokalita:
Praha 4, Praha 12, Pleštilova
 
 
Cena:
15 500 Kč / za nemovitost
 
+ energie
 
uvedená cena je: včetně provize Nabídněte prodejci Vaši cenu 
 
 

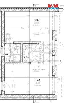
Hledáte bytovou jednotku s výhodami rodinného domu? Nabízíme Vám pronájem bytu 1+kk s podlahovou plochou 22 m². Mezi hlavní výhody patří parkování na oploceném pozemku, sdílenou zahradu či přístup do lesa na hranici pozemku. Autobusová zastávka je vzdálena 4 minuty chůze. Ceny energií budou upřesněny v průběhu nájemního vztahu. Pro více dotazů kontaktujte makléře. Cena za jednu bytovou jednotku.

 
zobrazit více
 
 
 


Doplňující informace:

ID inzerátu ESO: 4380260
Inzerát vydán: 18.01.2026
ID zakázky v RK: 900930276
Budova je z: Smíšená
Stav: Velmi dobrý
Vlastnictví: Osobní
Umístění: Velmi dobrý
Užitná plocha: 22 m2
Energetická náročnost budovy:
G - Mimořádně nehospodárná
 
 

 

Bleskový dotaz makléři

K pronájmu, Byt 1+kk, Praha 4, Praha 12, Pleštilova

Text dotazu *
Váš telefon *
Váš e-mail
Zobrazit kontaktní informace
Odeslat
 
 
 
 

Ve schránce je 0 inzerátů.

zobrazit celou schránku
 
 

Nalezli jsme dalších 55 nemovitostí v podobné ceně.

 
 
reklama