K pronájmu, Byt 1+kk, 30 m2, Praha 5, Sazovická

 
 
 
Lokalita:
Praha 5, Sazovická
 
 
Cena:
16 500 Kč / za nemovitost
 
vratná jistota, náklady na bydlení 3.500,-Kč poplatek za podnájem
 
Nabídněte prodejci Vaši cenu 
 
 

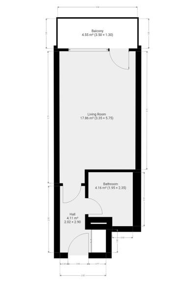
K dlouhodobému podnájmu Vám nabízíme slunný, útulný byt o dispozici 1+kk s balkonem, garážovým parkovacím stáním a sklepní kójí ve velmi klidné, přesto dobře dopravně dostupné lokalitě pražského Zličína. Byt se nachází ve zvýšeném přízemí cihlového domu. Skládá se ze vstupní chodby vybavené vestavnou šatní skříní, koupelny společné s toaletou zařízené zařízené pračkou, sprchovým koutem a umyvadlem. Obývací pokoj společný s kuchyňským koutem je zařízen obývací stěnou. Lze z něho vejít na prostorný balkon. O zajištění bezpečnosti se postarají elektrické předokenní rolety, které oddělují balkón od obývacího pokoje. Kuchyně je zařízena všemi spotřebiči - lednice, varná deska, digestoř, trouba a vestavná mikrovlnná trouba. Byt se nachází v klidné lokalitě, ulice Sazovická na Zličíně. Jen pár kroku od domu je autobusová zastávka "Nový Zličín". Na metro B to máte jednu zastávku autobusem nebo 5 minut klidnou procházkou. Stejně tak do OC Metropole Zličín. K bytu náleží garážové parkovací stání a sklepní kóje. Zálohové platby už obsahují zálohy na elektřinu a pojištění domácnosti. Byt je k dispozici od 1.3.2026.

 
zobrazit více
 
 
 


Doplňující informace:

ID inzerátu ESO: 4320496
Inzerát vydán: 21.03.2025
Inzerát aktualizován: 03.12.2025
ID zakázky v RK: 6053
Budova je z: Cihla
Stav: Velmi dobrý
Vlastnictví: Osobní
Umístění: Velmi dobrý
Obytná plocha: 30 m2
Balkón: ANO
Užitná plocha: 30 m2
Podlahová plocha: 30 m2
Energetická náročnost budovy:
C - Úsporná
 
 

 

Bleskový dotaz makléři

K pronájmu, Byt 1+kk, 30 m2, Praha 5, Sazovická

Text dotazu *
Váš telefon *
Váš e-mail
Zobrazit kontaktní informace
Odeslat
 
 
 
 

Ve schránce je 0 inzerátů.

zobrazit celou schránku
 
 

Nalezli jsme dalších 57 nemovitostí v podobné ceně.

 
 
reklama